Проекты домов
Одноэтажные дома из газобетона могут быть каким угодно – ограничениями выступают лишь площадь территории и бюджет: построить большой дом на маленькой территории не удастся точно, а расходы во многом определяют масштабы строительства и особенности здания.
Все типовые проекты предполагают стандартный набор помещений (кухня, спальни, гостиная, санузел, коридор) и могут включать дополнительные комнаты для каких-то целей внутри здания и отдельные опции: мансарда, гараж, подвал или цокольный этаж, балкон, терраса.
Проект дома из одного этажа с тремя комнатами
Такой дом подойдет для семьи из 3-4 человек максимум. Идеален для небольшой территории и при условии ограниченного бюджета как на этапе строительства, так и в будущем. Нет смысла строить большой дом, если не будет средств купить в него мебель, отапливать все помещения и в общем тратиться на содержание.
Данный проект – наиболее экономичный, уютный и компактный. Тут есть тамбур, который защищает внутреннее пространство от пыли и сквозняков с улицы. Все спальные помещения объединены в левой части здания, а правое крыло отдано под зону общего назначения. Кухня и вся рабочая зона подсвечена окном в углу. Гостиная с камином имеет выход на компактный балкон или небольшую террасу.
Проект дома с гаражом и террасой
Тут уже к общему помещению пристроено два элемента – терраса и гараж. Принцип зонирования немного другой, состав помещений расширен. Спальни находятся не в одном крыле, а по отдельности, чтобы всем было комфортно в большой семье. Так, отделены спальни взрослых членов семьи от детских санузлами и тамбуром.
У гаража внутреннего прохода в дом нет, что предусмотрено в целях безопасности. Дополнительными плюсами данного проекта являются котельная в гараже, 2 санузла, большое широкое крыльцо, которое может выступить в роли второй террасы.
В целом, проект достаточно компактный, но уже предлагает больше комфорта, чем предыдущий. Тут вполне могут разместиться взрослые родители и подросшие дети, предпочитающие уединение и свободу.
Проект мансардного дома
У домов с мансардами есть своя схема зонирования – как правило, принцип стандартный. Обычно все спальни находятся в мансарде, а на первом этаже располагают помещения дневного пребывания (чаще всего общего назначения). Кухня выступает отдельным помещением, для столовой есть место в просторной гостиной.
Данный проект можно считать бюджетным, так как планировка достаточно простая. В плане коробка прямоугольная, освещение верхних комнат реализовано за счет фронтальных окон – они стоят намного дешевле мансардных.
Такой проект подойдет для тех, кто ищет возможности для экономии, но нуждается в достаточном жилом пространстве, которое нужно создать на ограниченной территории. С одной стороны, и дополнительные комнаты есть, с другой же – такой вариант обойдется намного дешевле строительства двухэтажного газобетонного дома.
Классификация газоблоков по назначению
Поскольку мы рассматриваем вопрос о том, какой газобетон лучше для строительства дома, из списка исключим материал марок D100, D200 и D300, которые являются теплоизоляционными. Нас интересуют только конструкционные стеновые блоки для наружных стен:
- D400 – применяется для возведения одноэтажных домов, но при условии, что марка прочности не ниже B2,0. Некоторые заводы-изготовители выпускают газосиликат B1,5 – из него строить жилье мы не рекомендуем.
- D500 – используется для строительства 2-этажных домов, но опять-таки, если марка прочности не ниже B2,5 (в качестве перекрытия используются плиты, СМП) или B3,5 при монолитном перекрытии.
- D600 – предназначен для трехэтажных зданий. Марка прочности должна быть не ниже B3,5 при устройстве любых видов перекрытия. Но учтите, что у газоблоков некоторых производителей прочность может не дотягивать даже до B2,5.
К слову сказать, даже лучшие пеноблоки по прочности на сжатие уступают газобетону в несколько раз. К сравнению: для материала плотностью 500 кг/м3 максимальная прочность составляет всего 13 кгс/см2, тогда как у газосиликата марки D500 она будет 28-45 кгс/см2. Эта информация к сведению, чтоб вы не думали, что мы склоняем вас к покупке газобетонных блоков. Решать только вам!
Технология производства газобетона
Сначала готовится смесь компонентов, в которую входит портландцемент, мелкофракционный песок (кварцевый), вода, известь и газообразователь (чаще всего, это суспензия из алюминия). Затем смесь помещается в емкость, где происходит процесс вспучивания, в результате которого внутри бетона появляются пустоты. Эти пузырьки воздуха сообщают газобетону его свойства. Застывший блок извлекается из формы и нарезается по размеру. Таким образом получают газоблоки заданной формы.
Выделяют два способа производства газобетонных блоков:
- автоклавный;
- неавтоклавный.
Чтобы придать газобетону прочность, блоки обдаются водяным паром в автоклаве и помещаются до полного высыхания в сушильные камеры. Так получают автоклавный газобетон. После такой обработки блоки имеет более постоянные характеристики.
Неавтоклавный газобетон дешевле. Производят путем увлажнения и сушки в естественных условиях.
Кстати, формирование газоблоков из уже застывшей массы является ключевым отличием газобетона от пенобетона. Этот же факт вызывает наиболее ожесточенные споры среди потребителей, ведь поры материала, при таком способе обработки остаются открытыми. Тест на профпригодность газобетона приведем чуть ниже.
Производители газобетонных блоков
Согласно отзывам, лучшие компании-производители газоблоков:
Bonolit (Бонолит г. Старая Купавна), Грас (г. Малоярославец), Ytong (Итонг – торговая марка компании Xella (Германия), Poritep (г. Нижний Новгород), El-Block (г. Коломна), H+H (ООО «Х+Х РУС»), ООО «ГАЗОБЕТОН» (г. Иваново), Завод «Аэрок-СПб» (г. Санкт-Петербург), ЕвроАэроБетон (г. Сланцы).
Как видим, преимущественно отечественные производители. Не считая кустарных мини-заводов, на рынке представлено еще несколько десятков именитых производителей.
Виды газоблоков
Маркировка блоков из газобетона включает в себя прописную (заглавную) латинскую букву D и число, обозначающее плотность материала. Например, D500 — это обозначение газобетона плотностью 500 кг/м³. В зависимости от плотности материала, существуют три вида блоков:
- теплоизоляционные,
- конструкционно-теплоизоляционные,
- конструкционные.
В названии каждого вида угадывается и назначение блоков, заменять один вид другим не допускается. Использование блоков не по назначению грозит не только ухудшением характеристик здания, но и может привести к его разрушению.
Теплоизоляционные
К теплоизоляционным относятся газобетоны марок D300-D400. Ввиду малой плотности такой материал плохо пропускает тепло. Однако, большое количество пор уменьшает прочность материала.
Из теплоизоляционных газобетонных блоков делают ненесущие стены, которые при эксплуатации не воспринимают никакую нагрузку, кроме собственного веса. Такие стены выкладывают при строительстве зданий, имеющих пространственный каркас из железобетонных панелей или колонн. Блоками просто заполняют площади наружных стен, оставляя в них проемы для окон и дверей.
Стены каждого этажа опираются на перекрытия, максимальная высота такой стены не более высоты этажа. Поэтому блоки не подвергаются большим нагрузкам.
Конструкционно-теплоизоляционные
Этот вид газобетона, в который входят изделия марок D500-D900, применяют как универсальный. Блоки несут большую нагрузку, но теплопроводность их низкая. Из таких блоков можно выкладывать несущие стены двух- или трехэтажных домов, даже если перекрытия будут железобетонными, внутренние перегородки. В умеренном климате стены можно даже не утеплять. Блоки этого вида чаще других применяют при строительстве частных домов.
Конструкционные
Плотность конструкционных бетонов равна или превышает значение 1000 кг/м³. К этому виду относятся блоки марки D1000 и выше. Такие материалы применяют для строительства несущих стен многоэтажных зданий. Из-за большой плотности материала наружные элементы зданий, построенных в холодном климате, нуждаются в обязательном утеплении.
Газобетон применяют не только для производства стеновых блоков. Из этого материала делают также армированные перемычки, балки и плиты для сборных перекрытий. А вот строить фундамент из газобетона нельзя. Даже при большой плотности, этот материал способен впитывать большое количество влаги, которая со временем его разрушает. По этой же причине необходимо производить горизонтальную гидроизоляцию между фундаментом и стенами из газобетона.
Одноэтажные планировки
Среди проектов для постоянного проживания важное место занимают постройки с остеклением панорамного типа. Один из таких вариантов позволяет использовать для кровли:
керамическую черепицу;
металлочерепицу;
цементно-песчаную черепицу.
Кровля в любом случае наклонена на 30 градусов по умолчанию. Важными чертами являются:
44-метровый гараж на 2 автомашины;
40-метровая общая комната;
терраса площадью 74 кв. м.;
наличие ряда других более мелких помещений;
использование «второго света».
Среди простых вариантов выделяется и постройка с монолитным каркасом. Один из таких типов имеет размер 13х15 м. Предусмотрены кухня-столовая, котельная и терраса. Использование мансарды и цоколя не предусматривается. Есть 3 спальни, площадь которых составляет, соответственно, 16, 17 и 18 кв. м.
На подходе к дому расположена 22-метровая терраса. С нее можно войти в кухню площадью 11,7 кв. м. Между кухней и гостиной-столовой нет четкой границы. Важную роль играют также холл и второй свет. Дополнительно есть:
крыльцо;
холл;
6-метровая ванная комната.
В нем удобно хранить не только продукты, но и некоторые бытовые вещи. Чем больше семья, тем важнее такое дополнительное помещение. Альтернативно (или параллельно с основным назначением) подвал может быть отведен под:
бильярд;
дополнительную жилую комнату;
баню;
рабочий уголок;
импровизированный спортзал;
котельную зону.

С самого начала нужно оговорить, какова будет площадь оборудуемого подвального помещения. Кроме того, не все варианты фундаментов полностью совместимы с таким обустройством. Один из проектов предусматривает общую площадь 76,7 м2. Высота погреба составляет 1,95 м.
3 жилые комнаты и другие помещения жилища накрыты четырехскатной кровлей. Оригинальность замысла повышается благодаря наличию крыльца и эркера
Важно подчеркнуть также и присутствие террасы. Помещение включает котельную и пару спален
Площадь прихожей составляет 9,6 кв. м.


В некоторых случаях дополняют газобетонное жилище верандой и сауной. Опора — свайно-ростверковый железобетонный фундамент. Основные помещения в одном из вариантов:
2 спальни;
купальня/бассейн;
топочная;
санузел;
комната для переодевания;
подсобка универсального назначения;
тамбур;
объединенный кухонно-гостевой блок.


Важно выбирать концепции строительства и по площади. Многие люди ограничиваются величиной 6 на 8 – и такие постройки необходимо рассмотреть обязательно
Один из вариантов включает:
пару спален площадью по 10,83 кв. м.;
5-метровый санузел;
5-метровый гардероб;
холл величиной 7 кв. м.
Альтернативная концепция подразумевает оборудование:
2-метрового крыльца;
15-метровой гостиной;
тамбура;
котельной;
санузла;
холла;
кухни;
второго света.
Газобетон или пенобетон – делаем выбор
Пенобетон по многим критериям уступает в качестве газобетону. Его производство происходит непосредственно на строительных площадках или в других необорудованных местах, поэтому состав смеси зачастую не соответствует технологическим требованиям. Кроме того, сушка в естественных условиях не позволяет придать готовому изделию необходимую прочность, которая вдобавок неравномерна по всей поверхности. Пенобетон более подвержен усадке, что может привести к появлению трещин.
Но у пеноблоков показатель гигроскопичности или водопоглощения гораздо ниже, чем у газобетона. Поэтому появление трещин на пеноблоках из-за перепадов температур менее вероятно. Кроме того, хоть геометрия пеноблоков и хуже, но этот материал не требует от кладочника высокой квалификации, а идеальные по геометрии газоблоки лучше укладывать с минимальной толщиной клеевого шва.

Сравнительная таблица газобетона и пенобетонаИсточник 1beton.info
Как итог, несмотря на кажущуюся идентичность этих материалов, ставить их в один ряд попросту нельзя – каждый из них хорош в свое время и на своем месте и только специалисты смогут определить, что лучше использовать в конкретном случае.
Как правильно выбрать типовой проект дома из газобетона
При выборе проекта дома в первую очередь нужно обращать внимание на используемый в нём фундамент. Чтобы знать, какой тип подходит в вашем регионе строительства, скорее всего, нужно заказывать специальные геодезические исследования
Тогда на все 100% будете уверены, что со временем основание не даст трещину, его не будут подмывать грунтовые воды, и оно не увязнет в пучинистых грунтах.
Также заранее перед оплатой проекта обязательно ознакомьтесь с условиями данной организации, а именно, какую документацию на проект они предоставляют – обязательны три вышерассмотренных раздела. Некоторые компании «хитрят», не предоставляя развёрнутый инженерный раздел, ссылаясь на тонкости строительства в конкретном регионе. Хотя, по сути, устройство вентиляции и прочих систем от этого не зависит. Разве что нюансы исполнения. Поэтому будьте бдительны и не экономьте на покупке проекта своего будущего дома.
Проекты загородных домов из газобетонных блоков
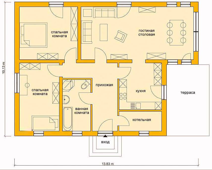
1. Одноэтажный дом с террасой 10×14.
Вход в дом расположен с южной стороны. За дверью находится просторная прихожая Г-образной формы. Это помещение занимает центральное положение и служит своеобразным указателем передвижений по дому. Спальные комнаты изолированные, что очень удобно для жильцов. Из прихожей можно попасть в любую часть дома. Сразу у входа находится котельная, за ней вход в кухню.
Северо-восточную часть дома занимает гостиная-столовая. Она условно разделена на 2 зоны – обеденную и для отдыха. Это самое просторное помещение, в котором удобно расположиться всей семьей перед телевизором или принимать гостей за большим столом. Возле него установлено широкое двустворчатое окно, впускающее в дом много дневного света.

Через открытый арочный проход гостиная соединяется с кухней. Такое проектирование отличается продуманностью и эргономичностью. Из кухни также есть выход на большую открытую террасу. Днем здесь хорошо прятаться от летнего зноя. Вечером можно устраивать чаепития и любоваться цветущим садом.
2. Проект двухэтажного дома из газоблоков Марбург.
1-го этаж.
По плану здесь располагаются технические и вспомогательные помещения. Из большой прихожей можно сразу попасть в комнату для гостей на 9 кв.м, где может остановиться 1-2 человека.

Затем путь ведет в гостиную. Это самая большая комната этажа, в котором свободно разместится шумная компания из 10-15 человек. Отсюда легко попасть в кухню, что очень удобно для обслуживания гостей. Кухня в свою очередь объединяется со столовой в помещение площадью 18.кв.м. Здесь достаточно места для приготовления и приема пищи 5-6 человек. Есть выход на небольшую открытую террасу. Летом на ней хорошо устраивать семейные и дружеские встречи.
2-й этаж.
Наверх коттеджа можно подняться по угловой лестнице, расположенной в холле. По схеме второй этаж представляет сплошную зону отдыха. Проектом предусмотрено 2 детских комнаты практически одинаковой площади. В родительской спальне выход на балкон. Также имеется совмещенный санузел большой площади. Жилая площадь всего дома – до 150 кв.м. Рассчитан на постоянное проживание семьи из 4-5 человек.
3. Дом с гаражом и мансардой Штендаль.
1 этаж.
По проекту опасть в дом можно через три разных двери. По одному входу есть на террасах, расположенных с противоположных сторон строения. Третий вход находится в гараже, он пристроен к дому с юго-западной стороны. Гараж сложен из стеновых газоблоков, как и весь дом.

Кухня-столовая, гостиная и холл составляют единое пространство. Для гостей предусмотрена небольшая комната отдыха. Рядом располагаются технические помещения.
Мансарда.
Верхняя часть дома является территорией для отдыха. Здесь 4 изолированные спальни, большая ванная и отдельный санузел. В двухэтажном доме достаточно места для одновременного проживания 5-7 человек.
4. Проект одноэтажного коттеджа из газобетона Констанц.
1 этаж.
Главный вход в дом ведет через высокое крыльцо. Вторая дверь располагается на крытой террасе с противоположной стороны коттеджа. Попасть в дом можно через гараж, пристроенный сбоку.

Центральной частью 1-го этажа является гостиная. Это единственное жилое помещение внизу. Из него можно выйти в холл, на террасу или кухню. Здесь же устроена угловая лестница, ведущая наверх.
Мансарда.
На верхнем этаже холл, 2 раздельные спальни и ванная. Отсюда также можно попасть на чердак. Общая площадь нижней части дома – около 100 кв. м. Это компактное удобное строение для семьи из трех человек.
6 этап – Межэтажные перекрытия в доме из газобетона
Строительство двухэтажного дома из газобетона подразумевает устройство перекрытия между этажами. Информация будет полезной и тем, кто планирует подвал под домом или коттеджем (потребуется монтаж перекрытия первого этажа).
Какие перекрытия лучше для дома из газобетона?
Выбирая материал для перекрытия можно не ограничивать себя, ведь газобетон позволяет использовать любой из представленных на рынке. Наиболее популярны деревянные и монолитные перекрытия, первые практикуют чаще.
Деревянные перекрытия в доме из газобетона
Для устройства деревянных перекрытий нужно сделать кольцевое (по периметру строения) армопояс на газобетоне под деревянные балки перекрытия. Для изготовления армирующего пояса используются U-блоки, в которые на 200-250 мм заводятся балки из дерева. Желательно, чтобы длина упора деревянной балки равнялась ее высоте. Пиломатериал изолируется, при этом его торцы остаются открытыми.
Деревянные перекрытия в доме из газобетонаУстройство деревянных перекрытий в доме из газобетона
Монолитное перекрытие в армопоясе не нуждается.
Для перекрытия первого этажа можно использовать:
Газобетонные плиты перекрытия
Характеристика материала зависит от его назначения и представлена в таблице
| Вид перекрытия | Плотность газобетона, марка | Класс бетона | Толщина плиты, мм | Расчетная нагрузка, кг/м.кв |
|---|---|---|---|---|
| Подвальное и цокольное | D600 | В 3,5 | 300 | 600 |
| Межэтажное | D600 | В 3,5 | 240 | 600 |
| Межэтажное усиленное (для гаражей) | D700 | В 3,5 | 300 | 800 |
| Кровельное | D500 | В 2,5 | 400 | 450 |
Размеры газобетонных плит приведены в таблице
| Параметр | От, мм. | До, мм. |
|---|---|---|
| Длина | 3 580 | 5 080 |
| Ширина | 625 | 625 |
| Толщина (высота) | 150 | 300 |
Стоимость от 3 000 до 10 000 руб/шт в зависимости от размеров и назначения.
Многопустотные плиты ЖБИ (железобетонные)
Маркировка ЖБИ плит в зависимости от назначения показана ниже (ГОСТ 9561-91).
ГОСТ 9561-91 – выдержка по плитам ЖБИ
Расшифровка маркировки плит перекрытия: например, «ПК 49-12-8»: буквы показывают вид плиты, индекс после букв обозначает размеры плиты (ед. измерения – дециметр), цифра после дефиса – расчетная вертикальная нагрузка (в 100 кг/см.кв) и класс арматуры.
Размеры железобетонных плит приведены в таблице
| Параметр | От, мм. | До, мм. |
|---|---|---|
| Длина | 2 700 | 9 000 |
| Ширина | 1 000 | 1 800 |
| Толщина (высота) | 200 | 200 |
Стоимость железобетонных плит от 3 000 до 18 000 руб/шт в зависимости от размеров и назначения.
№6. Проект «Грация»
Это максимально простой дом, без каких-либо архитектурных изысков, с обычной двухскатной крышей. Он отлично подходит для небольших и узких участков, а благодаря правильной отделке фасада дом будет выгодно смотреться. Проект поражает продуманностью планировки: тут каждый из 105 м2используется с максимальной пользой. На первом этаже предлагают разместить кухню и гостиную с камином. Эти помещения фактически разделены, отдельной столовой зоны не предусмотрено, но если объединить помещения, то обеденный стол можно вынести из кухонной зоны, — тут все зависит от ваших пожеланий. Из гостиной предусмотрен выход на террасу. На первом этаже можно расположить котельную, санузел и небольшую жилую комнату (кабинет, гостевая, детская).
На втором этаже компактно размещаются три спальни, две из них имеют выход на балкон. Есть тут и свой санузел, который, что интересно, также имеет выход на балкон, так что комфортные водные процедуры с последующим отдыхом на свежем воздухе за чашкой кофе вам гарантированы. Дом небольшой, но в нем есть все необходимое для домочадцев и гостей.
Плюсы и минусы домов из газобетона, обзор негативных мнений
Плюсы и минусы газобетона можно рассмотреть на примере домов, построенных с использованием этого материала. Пористая структура обеспечивает этим блокам множество преимуществ:
- высокую скорость строительства;
- экономичность;
- огнестойкость;
- низкий показатель тепловой проводимости;
- простую систему обработки;
- невысокую стоимость домов из газобетона;
- экологичность;
- отличный уровень паровой проницаемости;
- долговечность;
- морозостойкость.

В домах из газоблоков даже в холодный период сохраняется комфортная температура
Низкая цена домов из газобетона обусловлена несколькими факторами. С одной стороны, это дешевизна самого строительного материала. Для изготовления блоков требуется небольшое количество цемента, ведь основной объем изделий составляют поры, наполненные воздухом. С другой стороны, малые сроки строительства. Размеры блоков достаточно велики, чтобы сократить длительность этого процесса, а значит, удешевить его. Кроме этого, кирпич в таком же объеме весит гораздо больше (примерно в 3-5 раз). В результате строительные материалы и рабочее время используются более рационально.
Низкий уровень тепловой проводимости позволяет даже зимой сохранять в доме комфортную температуру. Газобетон удерживает тепло в доме примерно в 2-3 раза лучше, чем кирпич. Энергоэффективность стены толщиной 37,5 см, сложенной из газоблоков, такая же, как и у кирпичной кладки, толщина которой составляет 60 см. Блоки достаточно хорошо поддаются любым видам обработки: штроблению, распиливанию, фрезеровке. Изделия можно легко разрезать даже с помощью ручного инструмента, именно поэтому на фото домов из газобетона можно увидеть красивые здания со сложными архитектурными формами.
Газобетон относится к группе негорючих материалов. Если на стену из таких блоков будет воздействовать в течение 2 ч пламя, температура которого выше 100 °C, поверхность покроется трещинами глубиной всего 30-40 мм. Этого времени будет достаточно, чтобы эвакуировать всех жильцов коттеджа из газобетона прежде, чем перекрытия здания упадут. Деревянный дом в аналогичных условиях выгорит до основания.

В домах из газоблоков даже в холодный период сохраняется комфортная температура
Если блоки изготовлены без нарушения технологии, они не имеют неприятных запахов, экологичны и прекрасно пропускают воздух. Известны случаи, когда сроки службы газобетона составляли 40-50 лет.
Какие недостатки присущи газобетону: минусы материала
Та же пористая структура, обеспечившая газобетонным блокам столько преимуществ, стала источником и некоторых недостатков. Одной из слабых сторон является низкий уровень прочности на изгиб. Коэффициент предельной деформации этого материала находится в пределах 0,5-2 мм/м. Если деформационные изменения выйдут за рамки данных показателей, стены дома могут покрыться трещинами.
Исключить вероятность подобного исхода поможет строительство сплошного фундамента для дома из газосиликатных блоков, усиленного с помощью сетчатого армирования или монолитной обвязки. Кроме этого, желательно выполнить армирование кладки и обвязку перекрытий.
Благодаря пористой структуре материала монтаж крепежа (саморезов, анкеров, гвоздей) выполняется очень легко, но надежность его фиксации оставляет желать лучшего. Для газобетонных стен нужно подбирать специальные детали. Лучше отдать предпочтение рамному, нейлоновому или стальному крепежу. В таких условиях особого внимания заслуживает установка дверных и оконных конструкций. Если нарушить технологию, со временем они могут расшататься.

Дома из газосиликатных блоков не желательно строить выше 1-3 этажей
Адгезивные свойства материала не на высоте, поэтому перед нанесением штукатурки на газобетонные стены выполняется армирование поверхности. Грунтование также помогает решить проблему с адгезией. Среди недостатков зданий из газобетона также числится большая усадка. Смещение неавтоклавных блоков достигает 2 мм/м. Показатель автоклавного газобетона чуть меньше – 1 мм/м.
Какие бывают газобетонные блоки?
В зависимости от технологии производства газоблоки бывают 2-х видов – автоклавные и неавтоклавные (подробнее отличия материалов описаны в отдельной статье – «Автоклавный и неавтоклавный газобетон: отличия». Газобетон неавтоклавного твердения – блоки с ограниченной сферой применения (возведение ненесущих перегородок, хозпостроек, теплоизоляционные работы) и в качестве основного материала для стен жилья нами даже не рассматривается.
Довольно часто такой ответ можно услышать и на вопрос о том, какие бывают пеноблоки. И это в корне неправильно, поскольку автоклавного пенобетона не существует. Он изготовляется только неавтоклавным способом – путем заливки в специальные формы. Отсюда и большие погрешности в размерах блоков.
Строить дом лучше из газобетонных блоков автоклавного твердения. Это обусловлено следующими преимуществами:
- Идеальная геометрия. Погрешности по высоте, как правило, не превышают 1 мм, а по ширине – 3 мм. Это позволяет применять специальный клей для тонкошовной кладки.
- Однородность структуры. Воздушные поры одинаковые по размерам и равномерно распределены по объему, что обеспечивает стабильные показатели плотности.
- Достаточная прочность при относительно невысокой плотности. Это положительно отражается на теплоизоляционных качествах кладочного материала.
- Низкая теплопроводность. Зависит от плотности. Так, стеновые блоки для наружных стен марки D400 имеют коэффициент теплопроводности 0,095 Вт/м°C.
- Минимальная усадка. Максимальные показатели усадочных деформаций составляют 0,5 мм/м, что исключает возможность трещинообразования на стенах.
- Высокая морозостойкость. Газосиликатные блоки в зависимости от производителя выдерживают до 100 циклов замерзания/оттаивания.
Обзор проектов
Дома из газобетонных блоков на сегодняшний день стали отличной альтернативой постройкам из традиционных материалов. На сайтах строительных компаний можно найти множество вариантов таких коттеджей: как в современном стиле, так и в более традиционном. Популярные варианты описаны ниже – можно взять готовый план, а можно добавить к нему что-то свое.
Проект двухэтажного коттеджа в стиле шале. На первом этаже расположены кухня со столовой зоной, гостиная, санузел и одна спальня. На втором этаже – две спальни, санузел и две дополнительные комнаты, которые можно использовать как кабинет, гардеробную или игровое пространство. Это стандартная комплектация. На сайте есть возможность изменить проект, подобрать оптимальные размеры, строительные и отделочные материалы.
Проект одноэтажного небольшого дома с общей площадью 34,3 м2 – стандарт для семьи из 2 человек. В доме есть все необходимое: одна спальня, кухня-гостиная и санузел. Также в проекте предусмотрена крытая терраса, где можно обустроить зону отдыха в летнее время. Отделка фасада предполагает классический стиль, но при желании его можно изменить. Дом подойдет начинающим самостоятельную жизнь людям, так как прост в постройке, площадь для уборки минимальна. По такому проекту можно возвести жилище для постоянного проживания или дачу на летнее время.
Типовой план относится к бюджетному варианту. На его реализацию потребуется минимальная сумма, если не менять исходных строительных материалов. Общая площадь составляет 96,7 м2. В доме предусмотрены две спальни, совмещенный санузел, большая кухня и гостиная. С этим проектом справится даже начинающий строитель, так как в доме нет сложных конструкций. Стены можно возвести самостоятельно при наличии минимальных знаний и навыков.
А вот для заливки фундамента и возведения крыши лучше привлечь специалистов. Чердачное помещение можно обустроить под мансарду. При желании дополнительно утеплите там стены и проведите отопление. В плане предусмотрена складная лестница, позволяющая взобраться на чердак.
№1. Компактный дом с мансардой
Данный проект можно назвать универсальным решением. Дом может использоваться как для постоянного, так и для временного проживания. Места на участке он потребует немного, а внутри все спланировано так, что легко разместится большая семья или компания. Общая площадь – 120 м2. На первом этаже, согласно проекту, располагается огромная светлая гостиная (окна расположены с трех сторон), переходящая в столовую и кухню. Среди особенностей отметим наличие эркера и камина, так что обедать и проводить вечера тут будет уютно в любую пору году. Рядом с гостиной есть место для кабинета, который при желании можно переоборудовать в спальню или детскую. Также на первом этаже есть небольшая кладовая рядом с кухней, санузел и прихожая, в которой достаточно места для расположения шкафа-купе.
Мансардный этаж – это полностью жилая зона с тремя спальнями и большим санузлом. Две спальни имеют выход на один общий балкон, а в санузле отдельно выделена зона для прачечной. Дом отличает классическая архитектура, простая кровля и наличие террасы, куда обеспечен выход прямо из гостиной. Фасад можно выполнить с помощью штукатурки и камня, как показано на изображениях, но можно подобрать и другие материалы. Продуманно, компактно, идеально!





































