Особенности возведения стен веранд и их соединений с основным зданием
Особые технологии соединения стен в процессе пристройки веранды к дому, зачастую, актуальны лишь для закрытых веранд. Ведь их целью является создание цельного сооружения, не только в вопросах неразрывности теплового контура, но и в отношении единства его внешней эстетической композиции. При этом способы стыковки стеновых конструкций должны учитывать то, что как бы ни хотелось получить механическую монолитность их сопряжений, добиться этого на практике практически невозможно.
Пристройка стен тяжелых веранд
Технология соединения пристройки и основного здания зависит от того, какая строительная продукция применялась для их возведения. Так, если для стен веранды выбираются штучные материалы (кирпич, любые типы блоков), то их разновидность должна соответствовать материалам стеновой кладки дома. В этом случае хорошо работает скользящее сопряжение способом «шип-паз». Его получают следующим образом:
- в месте пристыковки пристройки на всю высоту её стены в стене дома выбирается вертикальный паз (штраба) на глубину 0,5 кирпича;
- выполняя кладку стены веранды, из неё в каждом ряду выпускают кирпичи, вставляемые на сухую (без раствора) в штрабу;
- после завершения процесса основной усадки зазоры в соединениях заполняются эластичными герметиками, затем, прикрываются с внутренней и внешней стороны накладными отделочными элементами. Заполнение щелей в скользящих узлах монтажной пеной допускается только в том случае, если ожидается незначительное движение конструкций. Например, если строительство ведется на каменистых грунтах, при этом фундаменты сооружений имеют жесткую сцепку.
Пристройка стен легких веранд
Пристроить веранду к дому можно и с использованием легких конструкционных элементов, например, типа пластиковых или алюминиевых стеклопакетов. Под ними, в качестве несущего основания, для многих проектов террас будет достаточно опорных столбов без жесткого соединения с фундаментом дома.
В этом случае легкие ограждающие конструкции крепятся только к несущему каркасу веранды. Если же их закрепить на стене дома, то результатом неравномерной усадки пристройки может стать перекос рам заполнений проемов и разрушение их стеклопакетов.
Однако, учитывая, что вес такой веранды значительно меньше, чем у построенной из кирпича, деформации грунта могут оказаться не столь существенными. Поэтому в ряде случаев грамотно обустроенный ленточный фундамент, жестко соединенный с фундаментом дома, позволит избежать неравномерных просадок. Такие конструктивные решения позволяют осуществлять крепление ограждений из легких рам к стене основного сооружения с использованием анкерных элементов или закладных деталей.
Рекомендации по расположению веранды
Если исходить из назначения этого вида пристройки, то веранду лучше устраивать со стороны заднего двора или с бокового торца дома — подальше от любопытных глаз и проходной улицы. Расположение по сторонам света определяют в зависимости от региона и собственных предпочтений:
Юг — рекомендован в северных регионах, с невысокими средними температурами в весенне-летний период.
Север — хороший выбор для южных регионов, когда важно обустроить зону отдыха с затененной стороны. Для средних и северных широт такая ориентация приносит результат, если необходимо дополнительно утеплить примыкающие к веранде жилые помещения.
Восток — хорошо подходит тем, кто ценит прохладу на закате летнего дня.
Запад — идеально подходит, если открывается хороший вид в эту сторону, чтобы наблюдать за закатом солнца
Например на берегу озера, морского залива.
И в продолжение темы. Как было сказано выше, расположение веранды еще во многом зависит от вида, который открывается с этой пристройки. А если он ограничен забором соседа, то вид можно организовать за счет ландшафтного дизайна собственного участка. Конечно, если есть для этого место.
dizlandshafta
Полезно44Бесполезно11
Варианты заполнения стен каркасной веранды
Вариантов, чем обшить каркас, существует достаточно много. Самое простое и распространённое решение: нижняя часть обшивается ОСП-плитами или иными древесными материалами, а верхнюю часть каркаса владельцы предпочитают остеклить.
Это позволяет обеспечить помещению достаточную освещённость, но при этом веранда будет надёжно защищена от дождя и других капризов природы. Однако есть и более интересные варианты:
- Отодвигающееся панорамное стекло: помещение веранды будет наполнено воздухом и светом. На ней можно будет выращивать любые растения.
В качестве рам устанавливаются современные двойные и тройные стеклопакеты, позволяющие надёжно изолировать помещение от холода. Однако у такого решения есть и минусы: стекло – хрупкий материал, и любой сильный удар или детская шалость могут привести к серьёзным неприятностям.
Открытая веранда с перилами. В некоторых случаях хозяева вообще отказываются от заполнения стен, и веранду можно сравнить с обычным просторным крыльцом. Перила устанавливаются на высоте 1 метра, их можно снабдить точёными красивыми балясинами.
Деревянные стойки, перила и столбики можно покрыть лаком, покрасить или обработать полупрозрачными лессирующими составами, позволяющими демонстрировать красоту дерева. Изготовить одинаковые балясины самостоятельно проблематично, поэтому проще заказать их токарю в мастерской.
Полностью закрытая веранда. Это, скорее, летняя пристройка с небольшой площадью остекления: она может иметь одно или несколько окон обычного размера.
Её можно использовать как летнюю кухню или дополнительную спальню на летний период, в такой пристройке можно расположить мастерскую или выделить место для хобби. Это возможность создать дополнительную полезную площадь и красиво оборудовать вход в дом.
Из каких материалов можно сделать?
Веранды изготавливают из различных материалов, выбор которых зависит от типа и назначения пристройки, а также стройматериалов, использованных при возведении основного здания.
Веранда из дерева пристроенная к дому — наиболее популярный вариант. Пристроить такую веранду можно к деревянному дому, кирпичному и любому другому. Выбор конкретного материала зависит от желаемого результата: деревянная терраса из бревен получится основательной и теплой. А летнюю кухню можно возвести из обычных досок.
Важно! Древесина требует дополнительной защиты от разрушительного воздействия влаги и насекомых: для этого ее обрабатывают специальными составами, а под нижние балки кладут рубероид или другой гидрозащитный материал
Террасы и веранды к дому часто делают из кирпича. Лучше всего строение смотрится у старого кирпичного дома, при этом желательно выбирать кирпич одного цвета и размера. Кирпичная веранда требует мощного, крепкого основания (столбчатый или ленточный фундамент, в зависимости от грунта).
Совет! Сделайте большое количество крупных окон, если хотите добиться легкости конструкции.
На фото деревянная веранда в стиле кантри
Поликарбонат — доступный, недорогой, легкий и современный материал. Его преимущество в гибкости — веранда может быть угловой, полукруглой, неправильной формы. Из минусов — недекоративный внешний вид и абсолютное отсутствие теплоемкости, к использованию зимой пристройка будет непригодна.
Ультрасовременная пристроенная веранда к дому делается из стекла. По сути вместо стен здесь габаритные стеклопакеты, которые могут быть стационарными или раздвижными. Углы укрепляют деревянными опорами. На стеклянной террасе размещают гостиную, столовую, зимний сад.
Стекло выглядит очень эффектно и отлично впишется в дизайн участка, однако в холодную погоду внутри скорее всего также будет холодно.
Важно! Преимущество полностью стеклянной конструкции в экономии на внутренней отделке стен: в обшивке будет нуждаться только пол и потолок
На фото пристрой из стекла
Как построить террасу своими руками
Терраса к дому своими руками сооружается всего лишь в несколько этапов:
- Выполняется укладка фундамента.
- Проводится монтаж настила.
- Обустраивается кровля, ограждения, декоративные элементы.
Необходимые инструменты и материалы
Для строительства террасы к дому из дерева своими руками понадобятся следующие материалы и инструменты:
- фрезер;
- шуруповерт;
- пиломатериала;
- элементы крепления;
- лопата;
- молоток;
- строительный уровень.
Обустройство фундамента
Для строительства террасы подойдет простой облегченный фундамент с песко-гравийной подушкой. С таким основание, на пол можно стелить бетонную плитку, клинкер, доску.
Процесс укладки фундамента выглядит следующим образом:
- С участка убирается все лишнее и почва выравнивается.
- Проводится разметка под строительство.
- С грунта снимается верхний слой, толщиной 20 см.
- Траншея засыпается песком и гравием и поливается водой.
- На аккуратно уложенную подушку выкладывается финишное покрытие.
Возведение стен
Веранда своими руками может быть открытой или закрытой. Если вы решили сделать ее защищенной от сквозняков и прочих негативных факторов, потребуется дополнительно соорудить стены. Их можно сделать из:
- дерева;
- различных блоков;
- металла;
- кирпича.
Каждый отдельный вариант имеет свою технологию возведения и преимущества.
Обустройство крыши
Кровля для террасы формируется несколькими способами:
- при примыкающей к дому конструкции на стропила укладывается деревянный брус, который крепится к верхней обвязке вертикальных стоек;
- укладывается из поликарбоната;
- сооружается из прозрачного шифера;
- делается съемный навес из тента.
Настил пола
При настиле деревянной половой доски применяется брус, который укладывается с шагом в 50 см. Дерево обязательно обрабатывается антисептиками и средствами, снижающими вероятность возгорания древесины.
Что касается самой древесины, то самой дешевой считается сосна. Но она не отличается длительным сроком эксплуатации. Лиственница более долговечная, но и стоит несколько дороже. А вот самой идеальной считается древесина, прошедшая термическую обработку. Это не только повышает срок ее эксплуатации, но и улучшает декоративные свойства.
Также можно использовать древесно – полимерный композит. Он внешне ничем не отличается от натуральной древесины, но обладает самыми высокими техническими характеристиками.
Сам процесс монтажа настила выглядит следующим образом:
- На основание монтируются лаги.
- Далее отмечаются места крепления бруса.
- Перекладины фиксируются металлическими уголками.
- Проводится монтаж напольного покрытия.
https://youtube.com/watch?v=qoWbWCH1p3Q
Внутреннее убранство
Для придания постройки более благородного и привлекательного внешнего вида, рекомендуется правильно продумать ее внутреннее обустройство. Вместо деревянного ограждения можно использовать тканевую тюль. Она придаст постройке воздушности, романтичности и эстетичности. К тому же, ткань прекрасно защитит место отдыха от проникновения избыточного количества дневного света.
Также здесь потребуется расставить мебельные предметы. Они выбираются в зависимости от того, в каких целях будет использоваться пристройка. Если это будет летняя кухня, то стоит продумать зону приготовления и приема пищи. Если изначально здесь планируется оборудовать место отдыха, то стоит позаботиться о расстановке комфортной мебели, журнального столика и элементов декора.
Установка перил
Что касается установки перил, то они должны состоят из трех основных элементов:
- стоек;
- балясин;
- перил.
Крепятся перила к опорам, на которых держится крыша или к вертикальным стойкам самой террасы.
В заключение стоит отметить, что мы рассмотрели, как построить веранду к дому своими руками с пошаговой инструкцией. Для реализации ваших задумок осталось только определиться с типом конструкции и материалами ее строительства. Далее понадобится составить подробную схему – проект, запастись свободным временем и желанием соорудить действительно практичное и комфортное место для отдыха на свежем воздухе.
Подготовка чертежа
Перед тем как приступить к сооружению веранды, необходимо подготовить и составить чертёж будущей конструкции
Важно определиться с формой и размерами строения, видом кровли, наличием фундамента и выбрать месторасположение будущей веранды, а также рассчитать количество необходимого материала. Рекомендуется составить эскиз и прорисовать его с разных сторон, учитывая все размеры и габариты. Если планируется установка в будущем месте отдыха мангала или подобного объекта, важно учитывать это при разработке чертежа, ведь для этого может потребоваться дополнительный фундамент или правильно спроектированная вентиляция
Если планируется установка в будущем месте отдыха мангала или подобного объекта, важно учитывать это при разработке чертежа, ведь для этого может потребоваться дополнительный фундамент или правильно спроектированная вентиляция
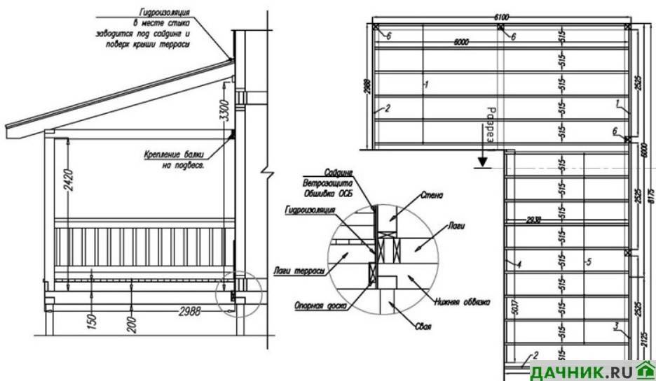
Отделка стен веранды
Стены веранды могут быть выполнены из кирпича, ОСБ, фанеры, дерева, обшиты пластиковой, деревянной вагонкой или сайдингом ( металлическим, виниловым). Монтаж отделочных материалов зависит от их вида.
Важно знать, что стену веранды, примыкающую к дому, крепят закладными металлическими элементами (деталями). Крепление должно быть жестким
Сегодня популярна обшивка стен веранды раздвижными системами, верхняя половина которых стеклянная, а нижняя деревянная.
Примечание. Прежде чем перейти к внешней и внутренней отделке стен веранды нужно дать ей время, чтобы устояться. Особенно это касается веранды из дерева.
Фундамент для пристраиваемой конструкции
В качестве основания для сооружения чаще всего используют ленту или столбчатый фундамент, каждый их них обладает определёнными преимуществами и недостатками.
Ленточный фундамент
Представляет собой замкнутый контур из железобетона, возводимый под всеми несущими стенами постройки, который передаёт нагрузку от них на грунт. Он позволяет возводить деревянные, кирпичные и монолитные строения.

Рассмотрим поэтапное возведение:
- На выделенном под строение участке делается разметка с помощью колышков и веревки;
- По разметке для фундамента под пристройку к дому своими руками выкапывается траншея, зависит её глубина от залегания основания дома. Ширина нужна больше, чем толщина укладываемой стенки на 10-15 см;
- В траншею засыпается песчаный пласт в 10-12 см и утрамбовывается;
- На дно выкладывается гидроизоляция, которая выступает на поверхность почвы на 40-45 см;
- На гидроизоляцию устанавливается арматурная решётка, которая соответствует форме возводимого фундамента по ширине и высоте;
- Ленту заливают бетоном на ⅓ высоты, когда данный слой застынет, то укладывается второй на ½ оставшейся высоты;
- После заливки 2-го слоя устанавливается опалубка из древесины для возведения надземной части ленточного основания (цокольной части). Гидроизоляционный материал запускается внутрь опалубки и фиксируется к её стенкам;
- Опалубка заполняется бетонной смесью, в процессе укладки уплотняется возвратно-поступательными движениями куском арматуры или вибратором для предотвращения образования в нём пор. После заполнения всей опалубки поверхность бетона разравнивается по уровню;
- Далее бетон должен высохнуть и набрать 100%-ю прочность через 28 дней. Первые 3 дня его нужно смачивать через 2-3 часа водой. Затем он поливается 3 раза в сутки на протяжении 25 дней.
После затвердения основания опалубка снимается, поверхность покрывается снаружи материалами для гидроизоляции.

Столбчатый фундамент для пристройки к дому своими руками
Его применяют при постройке веранд и летних кухонь, обустраивают из красного кирпича либо бетона. На столбы в основном устанавливают каркас из древесины, на него настилают сам пол.
Возводится основание таким образом:
- Размечается выделенный для строительства участок. Столбы устанавливают с шагом 1,5 м;
- Для каждого столбика копается отдельная 50х50 см ямка с углублением на 50-60 см. К верху она должна расширяться на 10 см со всех сторон;
- На дно ямы насыпается подушка из слоя песка и щебёнки. Затем её дно и стенки покрываются гидроизоляцией;
- Если опоры из кирпича, то на дно ям укладывается слой раствора, на который после застывания кладётся первый ряд кирпича;
- Если опорные столбики из бетона, то в ямы устанавливают арматуру и опалубку на высоту опоры. Гидроизоляция запускается внутрь опалубки и крепится к ней;
- В установленную опалубку слоями заливают бетон. Причем каждый слой раствора должен нормально схватиться;
- Верх столбика разравнивают, бетон увлажняется водой до набора им марочной прочности;
- Опалубка демонтируется, столбы покрываются гидроизоляционным материалом (обмазываются битумной мастикой, на которую наклеивается рубероид);
- Пустоты между стенками ямы и опорой засыпаются перемешанным с щебнем грунтом, который плотно утрамбовывается.

На верх столбов укладывается рубероид для укрытия от воздействия влаги уложенных на них деревянных брусьев.
Чтобы пристроенная конструкция не отошла со временем, возводят её с небольшим наклоном в направлении дома. Уклон стенок по вертикали закладывается в 1 см на каждый метр высоты пристроя. Чаще всего уклон закладывается на этапе возведения основания.

Закрытая или открытая веранда, пристроенная к дому
Открытые и закрытые модели имеют свои преимущества и недостатки, о которых стоит подумать перед началом строительных работ. Разница в закрытой и открытой веранде пристроенной к главному зданию заключается в следующих принципах:
- кол-во стройматериалов;
- защищенность от осадков;
- место для хранения;
- наличие обзора.
Изначально, пристройка веранды к главному зданию затрачивает на свое возведение намного больше ресурсов, чем открытое строение. Для неё потребуются полностью выстроенные стенки с оконными проемами, установка рам и более основательная фундаментальная конструкция, которая точно выдержит массу стен.
Защищенность от неблагоприятных погодных условий и вопрос с местом для хранения имеют связь. В закрытом строении с дверцей можно укрыться во время бури и спокойно отдохнуть, пока ваши соседи из дома наблюдают, как их террасную доску на открытом месте заливает дождь. То же самое и с хранением – в закрытой постройке вполне можно оставить велосипед даже зимой.
С другой стороны, открытая веранда, к дачному дому пристроенная, предоставляет шикарный обзор, не требуя вставки огромных и дорогостоящих окон. В солнечный день на ней вполне можно устроить послеобеденную сиесту, отдыхая на улице.
Красивые идеи
Террасу и веранду к дому недостаточно просто пристроить, чтобы она стала важной частью экосистемы загородного участка, следует провести отделку, поставить мебель и не забыть про декор! Мы собрали 10 оригинальных идей украшения:
- Вьющиеся растения. Если вы решили оставить пространство открытым, установите решетки вместо стен и используйте их в качестве каркаса для вьюнов. Оригинально смотрятся яркие подпорки (красные, желтые) в сочетании с сочной зеленью хмеля, девичьего винограда, плюща. К цветущим относятся клематисы, розы, глицинии, ипомеи, кобеи.
- Текстиль. Именно он придает уют и преображает пространство. Обычный диван, украшенный красивыми подушками, смотрится более празднично. Выбирайте расцветку и рисунок под свой стиль: геометрический для сканди, цветочный для прованса и т.д.
- Шторы. Мы специально отделили их от текстиля, ведь на открытых площадках портьеры могут выполнять роль стен: задвиньте их в хмурый день и откройте в солнечный!
- Гирлянды. Подсветка — важнейшая часть интерьера. В дополнение к потолочным светильникам, которые кстати также могут быть декоративными и отображать причастность к стилю, используйте милые гирлянды. На потолке или стенах они будут уместны в любом интерьере!
- Качель. Все-таки веранда обычно используется в качестве места отдыха, поэтому снабдить ее дополнительными предметами комфорта будет не лишним. Кресло-качалка или качели полюбятся всем членам семьи: от маленьких детей до пожилых.
- Вазы или горшки с цветами. Украсить веранду дома растениями можно не только снаружи, но и внутри: повесьте кашпо под потолок или на стены, расставьте горшки по полу, установите вазы на столы. Для украшения подойдут горшечные или срезанные цветы, а также сухостои. Выбирайте под стиль: к средиземноморскому больше подойдет пальма, а прованс украсит любой цветущий горшочек.
- Ковры. Не стоит забывать и о комфорте для ног! В закрытом помещении уместно постелить один большой или несколько маленьких ковриков — например, под диван, в рабочей зоне на кухне.
- Корзины и ящики. Декоративные корзинки не только украшают пространство, но и выполняют важную функцию хранения. Например, поставьте около дивана и сложите внутрь пледы или подушки.
- Посуда. Если на веранде располагается кухня или столовая, уместен декор посудой. Самовар или красивое блюдо — украшение сами по себе. Различные старые кувшины или другие сосуды используют в качестве ваз. Из тарелок делают панно на стену.
- Мебель. Не забывайте, что и она может быть нестандартной. Стол из слэба для стиля лофт или кантри, кованый стульчик под оформление в провансе, уютное подвесное кресло-яйцо для скандинавского.
Веранда на дачном участке — строить или нет
Во-первых, давайте ответим на вопрос, что же такое веранда. Прежде всего, это полуоткрытое крыльцо, часто на деревянных столбах, опирающихся на землю и прикрепленные к дому. Обычно веранда защищает одну из сторон дома от прямых солнечных лучей, где вы можете провести время во время дождя на открытом воздухе.
Веранда на только защищает от дождя. На улице жара? Нет проблем! Во время жаркой погоды вы можете проводить время на веранде, наслаждаясь теплой погодой с полным стаканом свежего сока в руке.
Если вы еще сомневаетесь в функциональности веранды и вопрос о ее строительстве стоит под вопросом, можем смело сказать, что не раздумывайте и конечно стройте веранду. Ведь у вас появится дополнительная комната, где вы сможете поставить мебель, создать красивое и уютное место для вечернего чаепития или посиделок в компании друзей. Если у вас есть возможность построить веранду — стройте, и вы останетесь довольны!
Как это часто бывает, мы действительно хотим построить веранду, но финансовое положение не позволят нам тратить лишние средства на дорогостоящие материалы и оплату работы строителей. Не волнуйтесь! Мы расскажем вам, как построить веранду своими руками и выгодно на этом сэкономить.
Пока вы только мечтаете о строительстве веранды, а мы уже подготовили для вас несколько советов и идей для вдохновения. Обязательно посмотрите на наши примеры и попытайтесь их превратить в реальность! Возможно, вы найдете подходящий именно вам вариант и сможете построить веранду на своем дачном участке. А мы рассказываем, как строится недорогая веранда своими руками.
Подготовка площадки под веранду
Если планируется постройка легкого сооружения, участок подготавливается следующим образом:
- Определяются границы области для пристройки возле дома.
- Выполняется точная разметка. Для этого с помощью измерительного инструмента вымеряется длина и ширина будущего сооружения. По углам и линиями периметра вбиваются колышки, а затем проверяются углы и диагонали.
- По размеченной линии на глубину 10-25 см срезается верхний черноземный слой почвы.
- Очищенный от верхнего слоя грунта участок засыпается 5-10 см слоем песка.
- После того как песчаная подушка уложена и плотно утрамбована, поверх выстилается 1-2 слоя геотекстиля. Необходимо это для предотвращения смешивания слоев засыпки и препятствия прорастанию растений.
- В завершении площадка заполняется среднефракционным щебнем слоем не менее 5-10 см.
Далее поверх укладываются бетонные блоки, на которые устанавливаются опоры каркаса.

Столбчатый фундамент под веранду
Наиболее подходящим для легких сооружения является именно этот тип фундамента. Делается легко, никаких навыков не нужно. Для сооружения такого фундамента можно использовать какие-то блоки или кирпичи. Для сооружения легкой веранды нам понадобится сделать 3 – 5 опор. Эти опоры никак не связываются друг с другом. Столбчатый фундамент подразумевает собой отдельно стоящие опоры, которые не зависят одна от другой. Стоит не забывать, что такой фундамент нужно делать на глубину фундамента дома или постройки, возле которой затеяли строительство веранды.
ШАГ 1: материалы. Какие материалы и инструменты понадобятся при строительстве столбчатого фундамента? Все банально просто. Арматура сечением 0,7 – 1,0 см, бетонный раствор, рубероид, веревка для разметки.
ШАГ 2: территория. Сначала нужно расчистить всю территорию от мусора и посторонних предметов, потом уже делаем разметку и забиваем колышки. Расстояние между опорами не должно превышать 1,5 метров. Именно на таком расстоянии мы забиваем колышки. Именно это будут опоры нашего столбчатого фундамента.
ШАГ 3: углубления. На месте каждого колышка нужно сделать ямы глубиной 70 – 100 см (в зависимости от глубины фундамента дома). Для этого можно использовать садовый бур, или любое другое приспособление, которое с легкостью справится с поставленной задачей. На дно каждой ямы засыпаем ровным слоем 15 — 20 см песка, и трамбуем его.
ШАГ 4: каркас опоры. На данном этапе инструкции, как сделать столбчатый фундамент под веранду, нужно установить каркас будущей опоры. Для этого, по размеру будущего столба, нужно сделать каркас из арматуры, и поместить его в центре готовой ямы. Варить прутки между собой нельзя. Для соединения прутьев используется специальная вязальная проволока.

ШАГ 5: опалубка. Чтобы не делать внутри ямки опалубку из деревянных досок, можно использовать рубероид, как форму для будущего столбчатого фундамента. Этот рубероид будет отличной гидроизоляцией для основания фундамента.
ШАГ 6: опоры. Далее нужно сделать опоры из блоков или кирпичей, нужной высоты и нужной площади. Сначала нужно сделать небольшую подушку из песка, и хорошо утрамбовать её. В основном используется обычный шлакоблок, который укладывается по специальной методике. Уже потом можно обложить его облицовочным кирпичом или декоративной плиточкой. Не забываем про строительный уровень.

Такой столбчатый фундамент поможет вам сэкономить время и деньги, выполняя ту же самую функцию, что, например, ленточный. Только на его сооружение вам нужно будет потратить 1 – 2 недели. А столбчатый можно сделать за 2 – 4 дня. Такой фундамент используется для сооружения легких веранд и пристроек (дерево, профильная труба).
Винтовой фундамент для веранды
Если вы собираетесь строить легкую пристройку или веранду, то вам достаточно будет сделать под неё винтовой фундамент. Это такие железные сваи, на конце которых расположены лопасти, которые «впиваются» в землю. Это очень удобный способ сделать фундамент за 1 день, даже за несколько часов. Винтовые сваи используются на любом типе грунта. Диаметр сваи определяется массивностью будущего сооружения. Шаг между сваями составляет 1 – 1,5 метра. Далее выполняем следующие шаги:
ШАГ 1: разметка. Делаем разметку винтового фундамента под веранду к дому своими руками при помощи веревки и колышек. Забиваем их на месте будущего расположения свай, и натягиваем между ними веревку, чтобы можно было отследить отклонение от центра.
ШАГ 2: вкручиваем сваи. В точках размещения опор вкручивают сваи. Глубина вкручивания сваи должна быть равно глубине промерзания грунта, а в средней полосе России эта глубина составляет 1,5 метра. Вкручивать сваи нужно специальным приспособлением. В одиночку сделать такой фундамент под веранду вы не сможете, поэтому сразу нужно искать второго человека. Торцы сваи не должны быть выше, чем на 25 – 30 см от уровня земли.
ШАГ 3: заливаем бетон. Для большей надежности в специальные полости в цилиндрических сваях заливаем раствор бетона. После его полного застывания, привариваются специальные металлические оголовки, а потом уже производится установка основания веранды или пристройки.
Такой фундамент под веранду очень хорошо смотрится с деревянными конструкциями. Сваи красятся в черный цвет, и под пристройкой их почти не заметно. Винтовые сваи используют на местности с песочным или глинистым грунтом. Монтаж очень простой, но, к сожалению, люди прибегают к помощи специалистов из-за отсутствия специального инструмента, которым осуществляется закручивание сваи в грунт. Но, некоторые умельцы сами делают это приспособление, и с легкостью сами справляются с изготовление свайного фундамента.
Деревянный
Хотя данный тип фундамента используется крайне редко, иногда его делают при строительстве деревянного дома. Это наиболее экологичный вариант из всех представленных выше. Работу можно выполнить следующим способом:
- Выкапываем ямки.
- На дно заливаем 10–15 см бетона и, не дожидаясь затвердевания, устанавливаем деревянные сваи.
- Для установки угловых столбов, нужно использовать древесину как минимум 30 см в диаметре.
- Для установки вспомогательных – 15–20 см в диаметре.
- Установку свай обязательно производим ниже точки промерзания.
- Верх должен возвышаться над землей на 30 см.
- Для большей прочности можно сделать шиповое соединение сваи с горизонтальным бревном.
- После установки, сваи можно залить бетоном или засыпать песком.






































