Планируем использовать для дома пеноблок – характеристики стройматериала
Пенобетонные блоки производятся по специальной технологии, обеспечивающей равномерное распределение воздушных ячеек в бетонном массиве.
Технология предусматривает смешивание с водой указанных ингредиентов:
- порообразователя;
- песка;
- цемента.
Концентрация воздушных включений в готовых пенобетонных блоках превышает половину их объема.
Пеноблоки отлично подходят для строительства дома
Главные эксплуатационные характеристики пенобетона:
- стойкость к влиянию сжимающих нагрузок. Прочность пеноблока маркируется заглавной буквой В и цифровым индексом в интервале 0,75–12,5;
- плотность. Она изменяется в зависимости от уровня пористости материала, определяющего назначение блоков. Составляет D 200–D 1200;
- целостность при глубоком замораживании. Пенобетонные блоки по показателю морозостойкости маркируются F15–F500;
- пониженная теплопроводность. Стены пеноблочного здания надежно удерживают тепло, способствуя поддержанию комфортной температуры;
- способность пропускать пар. Благодаря пористой структуре блоков в помещении поддерживается комфортный уровень влажности за счет выхода избыточной влаги.
Ячеистый стройматериал в зависимости от плотности классифицируется на следующие виды:
- изделия конструкционного назначения. Обладают максимальной плотностью, составляющей более 1,2 кг/м³, применяются для нагруженных конструкций;
- теплоизоляционная продукция. Имеет увеличенную пористость, вызывающую уменьшение плотности до 0,5 кг/м³, используется для утепления;
- конструкционно-теплоизоляционные блоки. При удельном весе до 0,9 кг/м³ оптимально сочетают прочность с теплоизоляционными характеристиками.
Строительство дома из пеноблоков
Округленные размеры пеноблоков составляют:
- длина – 30–60 см;
- ширина – 20–30 см;
- высота – 10–30 см.
Дом из пенобетона построить можно быстро, используя продукцию с увеличенными габаритами.
Строительство блочного фундамента
Обычно фундамент из блоков устанавливают не более чем за 2 дня. Для выкапывания лунок для блоков нужно дождаться, когда грунт будет сухим и достаточно теплым.
Как построить фундамент из блоков своими руками, пошаговая инструкция:
- Исходя из площади, а также формы беседки, вычисляют необходимое количество сечений.
- Место постройки тщательно очищают от мусора, на места будущих блоков устанавливают металлические прутья.
- Убирают прутки и выкапывают лунки под блоки.
- Дно вырытых лунок засыпают дренажным слоем.
- Укладывают бетонные блоки в лунки. Процедуру начинают с углов, а затем переходят к стенам и внутреннему пространству.
- Пустоту в лунках засыпают дренажной смесью.

После того, как все работы выполнены, измеряют уровень посадки блоков. По правилам строительства, они должны быть чуть выше грунта. Примерные размеры — 20-30 сантиметров, это помогает избежать сильной усадки. А для того, чтоб предотвратить передачу влаги от одного блока к другому, между ними устанавливают рубероид.
Только это поможет сделать конструкцию прочной, а опалубка не даст грунту и цементу смешаться.
Возводим стены
Когда сам фундамент полностью готов, самый раз подвозить пеноблоки
Необходимо отметить, что основное внимание стоит уделить тому, как завершить свой проект по постройке дома из пеноблоков корректно, ведь этот материал обладает своими особенностями
Из-за того, что пенобетонные блоки довольно непрочные, то перевозить и выгружать их надлежит бережно, для того чтобы не нанести ущерб.
В подобных целях применяют поддоны (снизу и сверху) и транспортно-упаковочный полиэтилен.
Для хранения всех материалов обязательно подготовьте сухую площадку с гладкой поверхностью.
Когда нужно построить дачу либо одноэтажный дом из подобных блоков своими руками, следует быть в курсе того, что строительство стен стартует с угловых блоков.

Постоянно ухаживайте за ровностью 1-го ряда, потому как данное убережёт от многочисленных проблем в ходе постройки и даже позднее.
Любой последующий ряд укладывайте на изобильно промоченные нижние блоки, чтобы достичь наилучшей адгезии.
Само выравнивание протекает поначалу в вертикальной плоскости, а позже в горизонтальной.

С целью связывания рядов используют специальный зубчатый ковш, каковым и наносят клеевой состав.
Прочная перевязка гарантируется специальной кладкой – всякий следующий ряд кладётся со смещением, какое пропорционально 1/2 высоты (бывает и больше).
Этапы строительства
Определившись с материалом, можно приступать к строительству беседки. К примеру, вы выбрали пенобетон. Перед началом строительства беседки необходимо создать ее проект:
- место расположения и размеры беседки;
- определите тип основания и крыши, определите материал;
- определите место установки печи;
- составьте смету предполагаемых расходов и т.д.
Первым этапом станет кладка бетонного фундамента для беседки. Беседка из блоков будет значительно тяжелее аналогичной конструкции из дерева или кирпича. Поэтому столбчатого варианта кладки фундамента здесь мало. Для пенобетонной конструкции лучше выбрать мелкоуглубленный ленточный вариант кладки — сборный или монолитный. В первом варианте в траншею на смесь песка и гравия укладываются бетонные блоки. Во втором – поверх подушки монтируют опалубку и заливают раствором из бетона.

Второй этап – возведение стен сооружения. Пеноблоки крепятся между собой на клеевой состав. В этом процессе следует придерживаться этапности:
- Изначально нужно возвести ровные углы. От высшего к нижнему. Используем строительный уровень.
- Маячный блок устанавливается на двухсантиметровый слой раствора и выравнивается.
- Переходим к порядовке. Блоки необходимо начинать укладывать от угла, подгоняя их друг к другу резиновым молотком.
- Необходимо оставить проемы для окон и дверей, если беседка будет закрытой.
- Штроборезом необходимо пропилить две параллельные полосы вдоль ряда из блоков. Туда ложится арматура и заливается раствор из бетона.

Завершительными этапами станет установка крыши, окон и дверей.
Сооружение кровли
Следующие 4 недели, пока бетон полностью высыхает, стоит уделить сборке кровли. Опытные специалисты знают, что кровля должна иметь уклон, градус которого продумывают, сооружая имитацию стропил и установив их наверху.

Вам будут нужны стропила, которые изготовлены из бруса размером 50х120 мм. Рамы стоит изготовлять такой жесткости, которая выдержит вес кровли. После этого они будут установлены на каркас. В зависимости от того, какой материал вы подберете для крыши, у вас будет выбор – укладывать его своими руками или поручить это профессионалам. Беседки из пеноблоков на фото смотрятся достаточно выгодно, убедиться в этом вы можете сами.

Преимущества каменной беседки
Каменная беседка — очень прочная и долговечная садовая конструкция. Популярными материалами для таких сооружений являются кирпич, бутовый камень, гранит, мрамор. К ним добавляются деревянные элементы, взятые для отделки. Такому тяжёлому строению требуется фундамент, на котором оно будет возводиться. Все элементы соединяются цементным раствором, а естественным образом возникающие стыки придают постройке интересный вид.

Дизайн описываемого строения также включает в себя пол. Хотя его укладка не является обязательной, стоит учитывать сложные условия использования помещения, и прежде всего дождливую, слякотную погоду и влажность земли. Наличие покрытия на грунте защитит садовую мебель от повреждений, и владелец избежит неприятных сюрпризов в виде луж во время сильного дождя.

Беседки из блоков своими руками
Многие обеспеченные хозяева дач заказывают типовые проекты у застройщиков, при этом переплачивая значительные суммы за гарантии и комплексное строительство. При желании сэкономить собственные средства можно заняться возведение такого строения собственноручно.
Особых знаний, усилий и навыков для создания простейших вариантов навесов не требуется. Блочную кладку лучше осуществлять под надзором опытного специалиста, а после изучения основных особенностей заниматься этим самостоятельно.

Любой индивидуальный проект будет прямым отражением внутреннего мира хозяина участка, что обязательно оценят пришедшие гости.
Нередко беседка становится настоящим украшением приусадебного участка, а то и всего загородного поместья, настоящим произведением искусства, Однако зачастую чаще всего людей интересует более меркантильный и житейский вопрос: как дешевле и проще построить данное сооружение, какой выбрать материал и при этом соорудить симпатичную конструкцию.
Вопрос о выборе основного материала встает сразу, ещё на стадии проектирования объекта. Это должно быть любимое и уютное место для всей семьи. И в то же время надо выбрать материал, позволяющий построить быстро, качественно и красиво, без лишних затрат, как трудовых, так и материальных.

Устройство блоков
Тематические элементы служат несущей основой, поэтому их необходимо устраивать под беседкой. В частности, речь идет об углах и стенах. Но укрытие может располагать большим пространством, поэтому прямо под напольным настилом придется устраивать еще один или два блочных ряда, чтобы пол не провисал из-за мебели и пользователей.
Сами блоки бывают:
- Кирпичными;
- Железобетонными (заливными);
- Пенобетонными.

Вообще тематическую подложку принято называть столбчатым фундаментом. Количество столбов подбирается в зависимости от площади беседки. Желательно, чтобы под каждым квадратным метром беседки находился один блок. Но если последний имеет небольшое сечение (менее 30×30 мм), то общее количество блоков, которые придется использовать, можно смело увеличить в 1,5 раза.
Какой фундамент выбрать?

Пеноблоки требуют надёжного фундамента. Например, ленточного. Когда грунт неустойчивый, придётся заливать сплошную плиту.
Мы рекомендуем фундаментную ленту. Возвести её за день самостоятельновполне реально и вам не придётся ждать месяц, пока материал затвердеет, беседка довольно маленькая постройка и вес стен сложенных из пеноблока несравненно меньше.
Когда выбран монолитный вариант, в траншею с покрытием устанавливается опалубка. Она застилается полиэтиленом. Каркас укладывается на дно, а сверху заливается бетон.
Поскольку мы с вами строим беседку, а не дом, можно обойтись без чрезмерного заглубления монолитной ленты. Особенно если грунтовые воды находятся достаточно глубоко, а с самим грунтом тоже всё в порядке.
Какой должна быть высота опоры? 35 см хватит с головой (заглубление на 20 см). Траншею роем на глубину 40 см
Очень важно, чтобы ширина фундамента совпала со стеновым материалом. Если сделать её на пять сантиметров шире, получим небольшой выступающий цоколь.
Возможен и комбинированный вариант фундамента
Для постройки с террасой специалисты делают бетонную ленту для стен и точечные опоры (столбы) для каркаса.
Разумеется, каждый тип имеет свои преимущества, недостатки и технологию строительства. Нужную инструкцию с фото вы всегда сможете найти на нашем сайте.
Материалы и необходимые инструменты
Для строительства беседки из пенобетонных блоков понадобится набор инструментов, а также расходные материалы:
- клей;
- цементно-песчаный раствор;
- пеноблоки.
Количество материала следует рассчитать до начала работ и закупить с небольшим запасом, чтобы при их перерасходе, порче или утрате не пришлось останавливать работы.
Основные инструменты, которые понадобятся при постройке пенобетонных стен:
- Ручная пила для пеноблоков. Для постройки одной беседки ее вполне достаточно, однако, при больших объемах работы, лучше приобрести ленточную пилу;
- Приспособление «уголок» – требуется при распиловке блоков вручную, повышает точность обрезки;
- Дрель и специальные насадки для нее;
- Штроборез или электрофреза – необходимы при создании пазов для укладки арматуры или электрокабелей;
- Специальная лопостная мешалка или дрель с насадкой-мешалкой – необходимы для создания клеящего раствора;
- Зубчатые шпатели, кельмы, мастерки применяются для укладки раствора;
- Резиновый молоток необходим для обсадки, подгонки пеноблоков при их укладке;
- Специальная шлифовальная доска, применяемая для разглаживания стен, устранения на них неровностей, выступов.
Какой материал надежнее в эксплуатации
За последние годы их стали покупать не только для летних сооружений, но и для капитальных домов, бань, гаражей. Они намного дешевле кирпича и легче по весу, но в зависимости от наполнения имеют существенные отличия в технических характеристиках и свойствах. Рассмотрим популярные виды блоков.

Фото: вариант беседки с односкатной крышей
Пенобетон
Блок, в основании которого находится ячеистый бетон. Почти в два раза дешевле кирпича. Имеет высокую теплопроводность, близкую к дереву, и хорошую шумоизоляцию. Подходит для беседок закрытого типа – зимой в таком помещении будет намного теплее, чем в кирпичном. К тому же за счет легкого веса нагрузка на фундамент будет меньше.

Его недостатки – невысокая прочность, высокий процент водопоглощения, поэтому стены потребуют наружной отделки.
Газобетон
По составу и форме очень схож с пенобетоном. Единственное отличие – в нем содержится меньше цемента. Имеет пористую структуру.
- легко режется, сверлится;
- невысокая цена;
- хорошая теплопроводность;
- прямоугольная форма, ровные грани;
- большой размер блока (сокращает время кладки);
- легкий вес.

Среди недостатков газобетонного материала можно выделить:
- высокий уровень водопоглощаемости;
- неустойчивость к воздействию влаги;
- низкий показатель морозостойкости.
Но эти минусы можно устранить, выполнив наружную облицовку беседки. Сверху блочной кладки хорошо ложится шпаклевка, штукатурка, плитка, камень. Можно обшить стены сайдингом.
Керамзитобетон
В его основе – гранулированная глина, цемент и вода. Все ингредиенты соединяются, формируются под давлением прессовочной машины полусухим способом изготовления.

В сравнении с другими, керамзитобетонные блоки имеют высокую прочность. В остальном технические характеристики аналогичны пеноблочному материалу.
Газосиликат
Существенное преимущество газосиликатных блоков – их паропроницаемость. В такой беседке температура воздуха и влажность всегда будут на необходимом уровне.

Имеет высокую шумоизоляцию. Материал экологичен. Гораздо дешевле обычного силикатного кирпича.
Недостаток – не выдерживает больших механических нагрузок. Начинает крошиться, может разломиться на части.
Полистиролбетон
Изготавливается двумя способами:
- вибропрессованием;
- литьем в кассетные формы.

Фото: полистиролбетонные блоки в форме кирпича
Легок в обработке. Имеет хорошую теплоизоляцию. Прочный. Не разрушится при ударе.
Существенный минус – неустойчив к воздействию высоких температур, может начать трескаться, поэтому его не рекомендуют использовать в беседках с печью.
Фундамент
Для кирпичных сооружений обязателен фундамент.
- Выройте котлован глубиной 40-50 см. Размер котлована немногим больше габаритов мангала, чтобы поставить опалубку.
- Уложите песчаную подушку толщиной 10 см. Увлажните песок и утрамбуйте.
- Поверх засыпьте 30 см щебня. Выровняйте и утрамбуйте.
- На подушку ставится опалубка и закрепляется колышками. Высота опалубки 10 см.
- Приготовьте бетон. 3 объёмные части песка, 1 объёмная часть цемента и 3 объёмные части щебня. Вода добавляется до нужной консистенции раствора.
- Закрепите арматурную сетку в опалубке, так чтобы она была посередине;
- Залейте бетон, разровняйте поверхность, укройте полиэтиленом;
- Оставьте фундамент набирать прочность. К следующим работам не преступать 7 дней.
Привлекательность пеноблоков
Почему в большинстве строительных работ используется именно пеноблок? На рынке представлено огромное количество разнообразных строительных материалов.
В отличие от других популярных строительных материалов пеноблоки обладают особыми техническими характеристиками, что делает их более привлекательными. В пеноблоках соединены все положительные свойства, которыми обладают в отдельности кирпич, дерево и металл.
- Имея большие габариты, пеноблоки очень легкие, в связи с чем снижаются затраты на грузоперевозку, пропадает необходимость использовать дополнительную технику для погрузки и выгрузки блоков.
- За счет больших размеров и маленького веса строительство проходит быстрее, что в свою очередь так же снижает затраты на оплату труда строителей.
- Пеноблоки имеют хорошую теплоизоляцию, так как в полости блоков находятся множество воздушных камер. Теплоизоляция в несколько раз превышает теплоизоляционные свойства кирпича.
- Пароизоляция блоков так же находится на высоком уровне. За счет этого исключается возможность образования грибков и плесени. Это позволяет увеличить срок эксплуатации построенных зданий.
- Пеноблоки можно легко обрабатывать и при необходимости разрезать любыми ножовками.
- Пеноблок не горит, в его составе отсутствуют вредные химические примеси, которые могли бы выделяться в атмосферу. По этой причине пеноблок считается экологичным материалом.
- Цена на пеноблок не значительно выше, чем у других строительных материалов, а за счет своих габаритов можно неплохо сэкономить, так как для строительства зданий и построек требуется на много меньше материала, чем других материалов имеющих маленькие размеры.
Какие бывают
Строительный материал выбирают исходя из внешнего вида остальных построек на участке. Этим же определяется и выбор кровельного материала. А форма и строение может быть любым.
Чаще всего каменные и кирпичные беседки делают прямоугольной формы: они обычно ставятся на границе участка, так что располагаются вдоль. Очень хорошо квадратные или прямоугольные проекты становятся в углу. Чтобы сделать атмосферу более камерной, обе стороны, которые будут обращены к соседским участкам, делают сплошными.

Каменная беседка — две стороны открытые, две — закрытые
Чисто каменные беседки, да еще закрытые встречаются нечасто. Это уже летняя кухня, а не беседка. Если необходимо, ограждение от насекомых делают из москитных сеток, могут для более уютной обстановки повесить полупрозрачные шторы, которые и от насекомых закроют, и от посторонних глаз. Для зимнего отдыха иногда ставят остекление. Получается уже отдельная кухня, если стоит в беседке барбекю или мангал. Остекление делают обычное: деревянные рамы или стеклопакеты, реже ставят поликарбонат, но он тоже вполне пригоден, еще и обладает меньшей теплопроводностью по сравнению с одинарным остеклением.
Часто комбинируют с деревом. И кирпич и камень хорошо с ними смотрятся. Еще делают ажурные перила из металла, реже встречается комбинация с поликарбонатом.

Кирпичная беседка с мангалом (барбекю)

Редкая комбинация — с крышей из поликарбоната

Летняя открытая беседка: на каменных столбах установлены мощные стойки из бруса

Эта беседка только из камня

Комбинация из кирпича и ажурного металлического орграждения

Витые колонны очень украшают
Как сделать деревянную беседку самостоятельно читайте тут.
Подготовка к работе
Прежде чем приступать к нулевому циклу и закладывать фундамент для беседки, рекомендуем составить проект будущей конструкции. Например, определиться с формой, размерами, а также дизайном. Поскольку наш материал негорючий, советуем выделить место для барбекю или сделать встроенный мангал.
Стены – закрытые или открытые? В первом случае, когда у вас три глухие стенки, крыша обустраивается на возвышениях из блоков. В открытом варианте возводится металлический или деревянный каркас. На нём сооружается крыша, после чего возводятся 1-2 стены из пеноблоков.

Беседка из пеноблоков открытого типа с деревянным ограждением
- Чертёж. Его можно нарисовать самостоятельно или скачать готовый проект в сети.
- Список материалов, инструментов.
- Расчёт бюджета.
- План проведения электропровода (если нужно), труб для подачи воды.
Одним словом, концепция постройки должна быть продумана максимально подробно. А затем обрела конкретные очертания на бумаге.
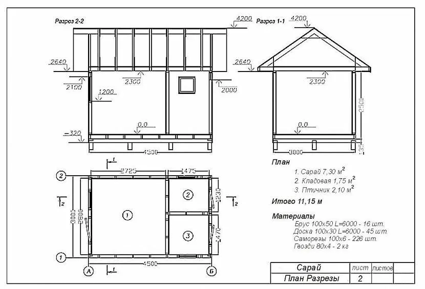
Подготовка: проекты сарая, чертежи, примерные габариты
Перед началом работ заказчику необходимо четко сформулировать желания при обращении в строительную компанию, занимающуюся изготовлением сарая из пеноблоков под ключ:
- Сначала хозяева выбирают размер будущей постройки. Оптимальные габариты хозблока – 4*6 м;
- Хозяева выбирают место расположения постройки, а представители строительной компании осматривают участок и выносят вердикт о возможности установки хозблока на этом месте. Решение зависит от анализа почвы и расположения сарая относительно других построек и границ участка;
- Хозяева выбирают форму крыши, расположение дверей и окон.
После получения данных о будущем объекте инженеры составляют проект хозблока из пеноблоков, утверждают его у заказчика и приступают к строительству.

Проект сарая Источник nemasterok.ru
Тонкости отделки блочной кладки

От внутренней отделки можно отказаться только в 2 случаях: вы оформляете помещение в стиле лофт или античность. Как правило, возведённые из пенобетонных блоков конструкции не оставляют без отделки. Давайте выясним, что нужно учитывать на данном этапе.
- Поскольку у нас с вами пористая поверхность, далеко не все грунтовые составы будут оптимальны. Поэтому при выборе грунтовки читаем инструкцию. Если написано «Для ячеистого бетона», смело покупаем.
- А вот выбор штукатурки поистине впечатляет. Здесь вам и камешковая, и цветная, и сделанная под мрамор. Главное, чтобы она была тонкослойной, имела полимерцементную основу. В беседках открытого типа облицовка декоративным камнем смотрится просто великолепно. Обычно это беседка с мангалом.
- Планируете использовать конструкцию круглый год? Тогда она должна быть застеклена и хорошо утеплена. Рекомендуется отделка цокольным сайдингом, термопанелями с внешней стороны. Ещё один вариант – обшивка плитами OSB, расшивка в фахверк стиле.
Что касается внутреннего убранства, оформление будет зависеть от выбранного вами стиля, вариантов остекления, дизайна самой беседки. Кто-то обшивает стены натуральным деревом, другие смотрят в сторону бамбука или даже интерьерных панелей. Всё зависит от вашей фантазии, семейного бюджета.
Почему именно пеноблок?
По сути, беседку своими рукамивполне реально соорудить из подручных материалов. Кому-то блоки ячеистого бетона покажутся неподходящим вариантом. Всё с точностью до наоборот – и сейчас вы поймёте, почему.
Главная причина популярности заключается в достаточно крупном формате материала. Он позволяет возводить кладку в разы быстрее кирпичной. Железобетонным аргументом стала и цена материала. Самый доступный кирпич продаётся за 4500 рублей/куб. м., тогда как блоки размером 50 х 40 х 40 см обойдутся вам в 2500-2800 рублей за такой же объём.
Но и это ещё не всё. Один кубометр газобетона весит примерно в 3 раза меньше, чем кирпичи такого же объёма. Следовательно, нагрузка на фундамент совсем скромная.
«Но ведь кирпич намного крепче пеноблоков!», – возмутятся скептики. Действительно крепче. Однако для домашней беседки это совсем несущественно – она «выдержит» даже самые шумные мероприятия!
Строительство стен
Освободив фундамент от временной опалубки, бетон накрывают рубероидом для гидроизоляции. После этого можно приступить к кладке пеноблоков. Клеящий раствор готовят из песка, цемента и воды. Первый ряд блоков укладывают от углов, двигаясь в стороны по периметру.
Толщина клеящего состава в швах не должна превышать 30 мм.
В местах, где планируется сделать проемы для окон и дверей, кладка не нужна, их сразу оставляют свободными. Когда проем достигнет нужной высоты, на боковые блоки устанавливают толстую доску и укрывают ее рубероидом или специальные металлические углы. Часть пеноблоков следующего ряда обрезают по высоте, чтобы он получился монолитным.
Каждый четвертый ряд кладки укрепляют армирующими прутьями, они обеспечивают большую прочность конструкции.





































