Схемы вентиляции для гаража с подвалом
Различается три варианта сети: естественная, принудительная и комбинированная. Все конструкции работают по принципу циркуляции воздуха, отличается организация сети. Для формирования схемы требуется две трубы или воздуховода – один на вход (приточный), второй – на выход (вытяжной).
Естественная вентиляция
Если все уже надоело и не знаете во что, еще поиграть, то можно попробовать скачать игровые автоматы 1xBet и насладиться новыми впечатлениями с популярной БК.
Работает по природному свойству нагретого воздуха подниматься, холодного – опускаться. Теплый пар с газами и компонентами поднимается вверх, выходит через естественные отверстия в крыше, через окно или щели в дверях. Приток свежего воздуха также поступает через двери и окна. Для интенсивности воздухообмена устанавливаются воздуховоды. Сеть энергонезависимая, может работать в любых условиях.
Плюсы:
- простота монтажа;
- невысокая стоимость;
- удобство эксплуатации;
- длительный срок службы;
- отсутствие шума.

Главный минус – нестабильность работы в летнее время. Чтобы образовалась тяга, необходима разница давления и температур внутри и снаружи помещения. Летом в жару организовать вытяжку крайне сложно, зимой трубы промерзают, что также снижает эффективность системы.
Принудительная вентиляция
Принудительная схема вентиляции гаража стоит дороже, зато работает в любую погоду. Организация сети подразумевает применение автоматических или механических нагнетателей.
Плюсы принудительной вентиляции в гараже:
- Регулирование и контроль. Благодаря автоматическим нагнетателям хозяин может задать режим воздухообмена, отключить сеть или увеличить интенсивность циркуляции.
- Универсальность. Принудительный воздухообмен организуется в строениях любого типа, конструкции, этажности. Благодаря системе вентиляторов и трубопроводов нормальный приток и вытяжка формируются в ямах и погребах большого заглубления.
Есть минусы:
- энергозависимость – без электропитания вентиляторы не заработают;
- высокая цена – оборудование стоит довольно дорого.
Комбинированная система

Сеть организуется так: приток осуществляется естественным образом, вытяжка – принудительная. Для формирования системы применяется приточный воздуховод, а в трубу вытяжки устанавливается вентилятор.
Достоинства:
- оперативность воздухообмена;
- быстрое удаление продуктов отработки;
- минимальные затраты;
- максимальная эффективность.
Минусов сеть не имеет – вложения небольшие, сделать сможет начинающий мастер. При соблюдении технологии схема работает в любое время года.
Принудительная вентиляция в погребе гаража
- преимущества:
- стабильность работы;
- возможность регулировки эффективности, подогрева воздуха;
- возможность использования фильтра воздуха.
- недостатки:
- постоянное потребления энергии;
- шум;
- сложность монтажа;
- значительная стоимость некоторых компонентов;
- наличие изнашивающихся и ломающихся деталей.
Принудительно вентиляции строится по тем же принципам, что и естественная. Ведь естественное движение воздуха должно помогать, а не препятствовать работе вентилятора.

Принудительную вентиляцию в погребе гаража может обеспечить канальный вентилятор
Особое внимание при установке принудительной вентиляция в погребе гаража следует уделить безопасности. Это касается прокладка электропроводки, установки выключателей и вентиляторов
Вентиляторы лучше всего выбирать канальные.
Что же касается фильтров, подогрева воздуха и регулировки работы вытяжки – всё это требует дополнительных затрат и делается по мере необходимости.
Как сделать вентиляционную систему в гаражном подвале
Вентиляцию в подвале гаража обустраивают по двум вариантам, то есть, в виде естественной модели или принудительной. При этом вариаций на данную тему может быть несколько, и все они эффективно работают. Вот несколько вариантов.
- Устанавливается вертикальный стояк, который с подвала выводится на улицу. Это вытяжка. В ней обязательно делают отверстия на уровне потолка самого гаража, чтобы через них происходил вывод отработанного воздуха. С нижнего края вытяжка будет производить отвод воздуха из подвала. В этом случае приточная система – это установленная в полу гаража труба, которая на этом уровне выводится на улицу через стену.
- Все также монтируется вертикальная вытяжка. Но приточная схема будет отличаться от предыдущей. Во-первых, она будет принудительной, для чего на уровне потолка устанавливается вентилятор, который будет загонять свежий воздух. Во-вторых, в полу на уровне вертикали с вентилятором будет сделано отверстие для прохождения приточного воздуха в подвал. В нее вставляется труба, которая нижним концом будет почти доходить до пола подвального помещения. Получается так, что циркуляция воздушного потока происходит через гараж, затем подвал с выводом на улицу.
Конструктивные ситуации с подвалом могут быть различными. То есть, в некоторых гаражах подвал является продолжением смотровой ямы. В этом случае вентиляционная схема организуется по вышеописанным технологиям. Существуют гаражи, в которых смотровая яма и подвал – это два разных помещения, разграниченные между собой стеной. В этом случае вентиляцию в гараже с подвалом и смотровой ямой делают по-другому. Для этого организуют переток в разграничительной стене в виде уложенной горизонтальной трубы на уровне минимального расстояния от пола смотровой ямы. Такая схема может быть и естественной, и принудительной приточной.
Если в гараже нет подвала, а только одна яма. Нужна ли здесь вентиляция. Система вентиляции в яме в гараже, как отельная составляющая, не делается. То есть, все происходит на уровне гаражного пола. Но при этом необходимо позаботиться о том, чтобы внутреннее пространство ямы всегда было сухим, особенно это касается пола.
Системы вентиляции
Их две: естественная и принудительная. Наиболее подходящей будет естественная, приточно-вытяжная. Физический принцип работы: температурная разница атмосферы и подземного помещения вызывает движение воздушных потоков. Между ними происходит воздухообмен.
Преимущества:
- Возможность построить самостоятельно.
- Небольшая стоимость.
- Не используются энергоносители.
- После определения оптимального режима работы не требует (за исключением особо морозных дней) постоянного контроля.
Естественная вентиляция имеет два варианта: с одной или двумя трубами.
Естественная вентиляция в погребе
Естественное проветривание погреба считается простым, так как подобные системы легко монтировать, а для их обустройства не требуется много материалов. Однако следует учитывать, что обеспечить стабильный микроклимат в помещении будет сложнее, чем при использовании приточно-вытяжной системы. Кроме того, если показатели температуры внутри погреба и снаружи будут совпадать, циркуляция воздуха может быть минимальной или полностью отсутствовать.
Поэтому, если вы планируете хранить в подвале продукты, которым требуется определенная температура, лучше приложить немного больше усилий и обустроить приточно-вытяжную систему.
Однотрубная
Вентиляция погреба с одной трубой – это устройство только вытяжки. Роль приточки выполняет входная дверь или люк. Такая схема применяется мало, в совсем небольших (до 6 м2) или старых погребах.
Диаметр тубы при такой схеме – не менее 200 мм. Её делят на два канала с задвижками и таким образом обеспечивают воздухообмен.
Двухтрубная
Вентиляция погреба с двумя трубами – универсальная схема, которая может работать как естественным образом, так и принудительно.
Основные элементы.
- Приточная труба – обеспечивает подачу воздуха.
- Зонтик (ещё лучше дефлектор), сетка для защиты от осадков, мусора и грызунов.
- Входной участок трубы располагается на высоте 20 – 30 см от пола.
- Вытяжная труба на расстоянии 0 – 10 см от потолка.
- Аналогично п. 2.
Устраивается вентиляция одновременно со строительством. Других вариантов просто нет. На фото не видно, как будет заходить приточка. Не рекомендуется делать повороты с углом 90°. Лучше использовать два отвода по 45°.
Расчет диаметра труб для вентиляции погреба
Если план помещения не имеет каких-либо нестандартных особенностей, то рассчитать диаметр трубы можно самостоятельно. Согласно стандартам, один квадратный метр подвала равен 26 квадратным сантиметрам вентиляционной трубы. Благодаря этому соотношению складывается алгоритм расчета диаметра:
- измерить площадь подвального помещения;
- разделить площадь на 26 см2;
- умножить получившееся значение на 3,14;
Для удобства расчета предлагается таблица значений для небольших погребов:
| Площадь помещения, м2 | ||||||||
| 4 | 6 | 8 | 9 | 10 | 12 | 15 | 18 | |
| Сечение воздуховода, см2 | 104 | 156 | 208 | 234 | 260 | 312 | 390 | 468 |
| Диаметр трубы | 11 | 14 | 16 | 17 | 18 | 20 | 22 | 25 |
Согласно правилам установки вентиляции в погребе, сечение трубы должно быть на 10-15% больше, чем рассчитывалось
Также важно брать в учет, что качественная система воздухообмена подразумевает наличие задвижек каналов
Принудительная вентиляция в погребе своими руками
Фактически принудительная вентиляция отличается от естественной только тем, что внутрь труб (вентиляционных каналов) устанавливают вентиляторы, которые обеспечивают более интенсивный приток и отведение воздуха
Принцип работы
Принцип действия принудительной вентиляции достаточно простой. В самом простом варианте вентилятор устанавливают только на вытяжную трубу. Таким образом создается более активное движение воздуха через приточное отверстие.
В больших помещениях есть смысл устанавливать вентиляторы и на вытяжную, и на приточную. В данном случае справиться самому будет сложно и лучше обратиться к специалисту, который поможет определиться подходящий диаметр труб и мощность вентиляторов.
Оборудование
Поскольку принудительное проветривание считается более надежным и современным, для его обустройства понадобится дополнительное оборудование. Конечно, в первую очередь нужно подготовить необходимое количество каналов подходящего диаметра. После этого следует купить вентиляторы подходящего размера и мощности.
Также необходимо предусмотреть гидроизоляцию приборов от влаги, которая может попадать в помещение снаружи или просачиваться сквозь стены.
Как сделать вентиляцию в гараже своими руками
Сложность проводимых процессов будет зависеть от того, какой вид вентиляционной схемы был выбран, плюс, для какого гаража она организовывается. К примеру, вентиляция в металлическом гараже будет по сложности сильно отличаться от кирпичного строения, возведенного впритык к основному дому. Потому что последняя постройка – это, по сути, основательное помещение, требующее такого же подхода и к организации вентиляции.
Поэтому рассмотрим более подробно, как сделать вентиляцию в гараже в зависимости от его конструктивных особенностей.
Естественную систему
Ее как раз и используют чаще всего в металлических конструкциях. Если говорим о том, как правильно сделать систему вентиляции в гараже своими руками, то необходимо понимать, по каким принципам она должна работать эффективно.
В первую очередь это касается правильного перемещения воздушного потока, чтобы он как можно больше захватывал собой пространство. Поэтому грамотная организация основывается на двух основных принципах.
- Движение воздуха снизу вверх, для чего в одной из стен у пола делаются отверстия в виде решетки. А в потолке через проделанное отверстие выводится труба.
- Движение от пола к потолку должно происходить по диагонали помещения. Таким образом захватывается весь объем воздуха, находящегося внутри.
Самый простой способ организации естественной вентиляции гаража без подвала – это решетка в задней стенке и труба при входе, или труба у задней стенки, а решетка организуется в гаражных воротах. Конечно, неплотности в воротах и двери могут стать приточным участком. Но вытяжную трубу надо будет устанавливать обязательно. И если говорим о металлическом гараже, то в его крыше делается отверстие, устанавливается стальная труба, которая приваривается к металлическому перекрытию.
Сложнее с гаражом, в котором есть подвал, как место хранения. Для этого придется делать или две вытяжки: одну для подвала, другую для самого гаражного пространства, или одну общую, которая будет проходить от подвала через пол и кровлю. В этом случае к стояку придется подсоединить небольшой длины участок, через который будет производиться отток воздуха из помещения. Не забываем организовать приточный участок. Это все та же труба, которая с улицы через одну из стен входит в подвал с его потолка.
Что касается гаража, как капитального строения, то здесь естественная вентиляция должна в первую очередь быть рассчитанной. Расчет достаточно просто – площадь пола умножается на 0,2%. И полученный результат является площадью выводных отверстий в системе естественной вентиляции. К примеру, если площадь гаражного помещения – 50 м², то площадь всех вентиляционных стояков на вытяжке должна быть: 50х0,002=0,1 м². Это стояк квадратного сечения со сторонами 10х10 см.
Но существует одно немаловажное требование, которое определяется санитарными нормами. Если площадь превышает 50 м², то естественную вытяжку использовать в нем нельзя
Для этого обязательно устанавливается механический отвод отработанных воздушных масс.
Механическую вытяжку
К сооружению принудительной вентиляции в гараже своими руками надо, как и к естественной, подходить с позиции точного расчета. Главное – это правильно подобрать вентилятор по производительности. По нормам в гараже кратность обмена воздуха варьируется в пределах 20-30 м³/час. Соответственно и вентилятор должен быть выбран под эту производительность. Его можно установить на вытяжку или на приточный участок.
Сегодня производители вентиляторов для принудительных систем предлагают несколько разновидностей своей продукции. Но чаще всего в гаражах используют настенные модели. Это конструкции, состоящие из электродвигателя с крыльчаткой на валу, который сам закреплен на корпусе прибора, закрытой с одной стороны решеткой.
На корпусе есть четыре монтажных отверстия, через которые и производится крепления вентилятора к стенкам или потолку. Некоторые современные модели имеют функцию ресивера, это когда вал двигателя может крутить и по часовой стрелке, и против нее. Такие приборы более удобны, потому что их можно устанавливать как изнутри гаражного помещения, так и снаружи. Главное – правильно включить вентилятор в нужную сторону.
Сегодня все чаще производители вентиляционных систем предлагают готовые комплекты, в состав которых входят воздуховоды и вентилятор закрытого типа. То есть, это пластиковый или металлический герметичный корпус, внутри которого установлен вентилятор. Корпус с двух сторон имеет патрубки, с помощью которых прибор устанавливается в схему воздуховодов. При этом вентилятор можно установить как на приточный участок, так и на вытяжной. Главное – сориентировать его по направлению движения воздушного потока.
Как правильно сделать вентиляцию в подвале гаража
Если площадь гаража небольшая (не более 50 кв. м.) и периодический осмотр труб и их очистка не вызовут затруднений, можно ограничиться естественной вентиляцией подвала в гараже.
Устройство естественной системы
Система естественного воздухообмена состоит из следующих элементов:
- Вводная труба диаметром 10-25 см. Обеспечивает подачу воздуха извне.
- Вытяжная труба, диаметр которой соответствует диаметру входной трубы, через нее выходит наружу отработанный воздух.
- Мелкоячеистая сетка.
- Емкость для конденсата.
- Конусный козырёк.
До монтажа вентиляционной системы следует обустроить тепло- и гидроизоляцию. Лучше, если работы по их обустройству были проведены еще при строительстве погреба.
Для защиты от грунтовых вод стены погреба покрывают проникающей гидроизоляцией. В качестве теплоизоляции можно использовать различные изоляционные материалы. Самый дешёвый вариант — укладка слоя утрамбованного песка и отделка стен геотекстилем.
Этапы выполнения работ:
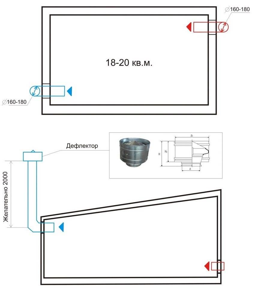
- Установка вытяжного воздуховода. На расстоянии 1,5-2 м от пола располагают нижний конец воздуховода. Вывод верхнего окончания трубы производят на 50 см выше самой высокой отметки покрытия гаража.
- Монтаж приточной трубы. Нижний конец воздуховода подводят к углу, расположенному с противоположной от вытяжки стороны погреба, и закрепляют в 0,5 м от пола. Другим концом труба выходит наружу на высоту от 20 до 30 см над поверхностью земли.
- Проверка тяги, монтаж защитной сетки. Выходные отверстия можно дополнительно защитить от осадков небольшими колпачками.
- Для сбора конденсата устанавливается емкость под выходной трубой.
Кроме того, можно для регулировки вентиляции в погребе гаража на зиму закрывать отверстия специальными заслонками.
Вентиляция в гараже с подвалом: установка принудительной вентиляции
Для организации правильной вентиляции погреба в гараже необходимо определить место установки вентилятора. При попадании влаги он может выйти из строя, поэтому его нельзя монтировать на крыше или в погребе. Кроме того, из-за высокого уровня шума его не рекомендуется устанавливать внутри гаража.
Таким образом, можно определить два варианта установки:
- В конце входной трубы, где происходит забор воздуха.
- Монтаж канального вентилятора.
Этапы монтажа:
На начальном этапе установка системы принудительной циркуляции не отличается от монтажа естественной вентиляции. Когда входная и выводящая трубы готовы, дальнейшая установка производится поэтапно:
- В трубу монтируют вентилятор.
- Для запитки вентилятора укладывают электрокабель.
- Устанавливают переключатель.
Снаружи выходная труба защищается от птиц, грызунов и попадания мусора мелкозернистой решёткой. Устраивается козырёк, исключающий проникновение осадков внутрь.
Вытяжка в погребе гаража: инструкция по установке
Данная инструкция не включает строительные работы по тепло- и гидроизоляции помещения погреба
Если погреб под гаражом был предусмотрен на этапе строительства, важно уделить внимание отделке стен и пола. Чтобы не повадились грызуны лакомиться припасами, используют эковату, пол же утепляют, укладывая «подушку» из песка и щебня, поверх которой делают стяжку
При достаточно близком залегании грунтовых вод, во избежание дополнительного источника образования влажности, рекомендуется стены облицовывать следующим образом: обмазать глиной (слой толщиной не менее 3-4 см); облицевать кирпичом; оштукатурить; побелить гашеной известью.
Шаг № 1 Проектирование
Подробная схема от грамотного домовладельца
Прежде чем, начать работы по монтажу необходимо определиться:
какая будет вентиляционная система: естественная, смешанная или полностью механизированная;
определить место, где будет расположен «вход» для приточной трубы;
рассчитать длину и диаметр трубы;
если было принято решение о монтаже вентиляции с применением оборудования (принудительный воздухообмен), приобрести его, обращая внимание на мощность.
Шаг № 2 Подготовка оборудования и материалов
Сначала определяют диаметр труб, изготовленных из асбеста, оцинкованного железа или ПВХ. Расчет производится по формуле, исходя из площади помещения и установленного нормативами сечения труб для помещений подвала – 26 кв. см диаметра трубы должно соответствовать 1 кв. м помещения. Кроме того, чтобы вентиляция в овощной яме работала более эффективно (учитывая «соседство» с гаражом), расчетный диаметр вытяжной трубы увеличивают на 13-15%.
Длину входящей трубы рассчитывают исходя из того, в каком месте она возьмет свое начало. Если для воздухообмена используют смешанный вид вентиляции, то возможен вариант: труба, входит в помещение гаража на высоте середины надземной части фундамента (25-35 см), далее, через пол гаража, входит в погреб, не доходя 30-40 см до уровня пола погреба.
Вытяжная труба выходит из погреба на высоте 1,5 м от пола, проходя через все здание, выходит через крышу на высоту не менее 50 см выше конька. Если гараж – отдельно стоящее строение, то труба будет короче, однако, требование наружной высоты (50 см выше конька) сохраняется.
Для естественной вентиляции, кроме труб, потребуется:
- емкость для конденсата;
- защитная решетка с мелкой сеткой для входящего отверстия;
- козырек на трубу; утеплитель для труб.
Для принудительного воздухообмена – вентиляторы, электропроводка, дефлектор.
Вытяжное устройство для принудительной вентсистемы
Шаг № 3 Схема последовательности монтажа
Монтаж вытяжной и приточной труб. Приточная труба заводится из помещения гаража в один из углов погреба. Ее входное отверстие (со стороны улицы) закрывают решеткой или сеткой во избежание попадания грызунов, птиц, мусора. Вытяжка устанавливается в противоположном углу (по диагонали) и выходит наружу через крышу. В том месте, где труба проходит через чердак, ее обязательно утепляют. Для регулировки движением воздушных масс, на трубах устанавливают заслонки.
Вентиляция в погребе гаража одной трубой предусматривает такие варианты:
- монтируют только вытяжную трубу, а приток воздуха происходит из гаража. Так как воздушная среда гаражного помещения содержит токсичные вещества, есть вероятность их попадания на пищевые продукты.
- монтаж одной трубы с двумя створками.
Для постоянной подачи свежего воздуха в подвал, на приточной трубе устанавливают вентилятор, подсоединяют его к электрической сети. Такая принудительная система, позволит в любое время года, независимо от температурных перепадов, поддерживать правильную работу вентиляционной системы.
Как сделать, чтобы попадающий из гаража воздух сразу «покидал» погреб? Решение такой проблемы – вытяжной вентилятор. Рынок электроприборов предлагает множество моделей. Можно подобрать осевой вентилятор с датчиком влажности, что актуально в данном помещении.
Еще одно приспособление, улучшающее вентиляцию, дефлектор, устанавливаемый на конец вытяжной трубы. Его задача – всасывать отработанный воздух через специальные каналы и улучшать работы вентсистемы на 15-20%.
Виды вентиляции
Принудительная вентиляция в гараже.
Вентиляция гаража с подвалом выбирается исходя из индивидуальных предпочтений и размеров помещения.
Так, различают два вида циркуляции воздуха:
- Естественную,
- Принудительную.
Если площадь подвала или гаража не превышает 50 кв.м., то используют естественный метод, в противном случае проводят установку принудительного воздухообмена.
Схема естественной вентиляции проста, можно все установить самостоятельно.
- Естественная вентиляция, отличается простотой монтажа и отсутствием необходимости использования сложных систем. В этом случае понадобится только крепление двух труб, из которых одна будет предназначена для оттока воздуха, а другая – для притока.
К главным преимуществам системы относят:
- простота установки;
- низкая стоимость;
- бесшумность работы.
Однако в жаркий период эта система не всегда работает, так как воздушный поток останавливается. Зимой же трубы могут просто закупориться инеем. Потому летом необходимо устанавливать вентиляторы, а зимой утеплять их. (См. также статью Утепление изнутри цокольного этажа: особенности.)
Вытяжные вентиляторы необходимо ставить в двух трубах.
Недостатками такой системы являются также:
- отсутствие фильтров;
- невозможность нагрева или охлаждения воздушных масс;
- невозможность регулирования работы.
- Принцип принудительной системы основан на нагнетании воздуха внутрь вентилятором, где после фильтрации (при необходимости нагрева или охлаждения) подается по вентканалам помещения. Устройство вентиляции в подвале гаража таким методом позволяет обеспечивать комфортные условия независимо от погодных условий.
Несмотря на наличие множества преимуществ, такая система обладает рядом минусов:
- возможность выхода из строя механических деталей;
- зависимость от электроэнергии;
- сложность установки;
- большие габариты основных элементов;
- высокая цена.
Обустройство естественной вентиляции
Эффективная циркуляция в небольших помещениях может быть организована с помощью естественного воздухообмена. Рассматриваемый метод защиты автомобиля, продуктов и металлических конструкций от влаги является не только простым, но и дешевым.
Как сделать вентиляцию в гараже с подвалом в этом случае? Здесь потребуется только наличие двух труб, материал которых может быть любой.
Обычно для этого используют трубы диаметром 100-250 мм. При этом крепиться они могут любым способом.
Приведенная далее схема вентиляции гаража с подвалом поможет разобраться с этапами ее установки.
- На первом этапе выполняют крепление трубы, предназначенной для вытяжки. Один ее конец будет выходить наружу, и располагаться он будет на высоте 50 см от самой высокой точки кровли.
Процесс крепления трубы для вытяжки.
- С противоположной стороны устанавливают трубу для притока на расстоянии полуметра от пола. Как видно на фото, она также выводится наружу.
Схема естественной вентиляции гаража
- После завершения монтажа проверяется воздушная тяга, а концы труб защищают от попадания в них мусора металлическими сетками.
Выполнить вентиляцию также можно другим способом. Он предусматривает выполнение кирпичной конструкции с расположенными в ней изолированными друг от друга проходами. Вентиляция гаража подвала в том случае имеет более аккуратный внешний вид.
Самый дешевый вариант подразумевает замену труб на шибер – решетку-жалюзи, монтируемую на торцовой части здания. Этой решетки будет достаточно для обеспечения притока воздуха для небольшого помещения.
Установка принудительной вентиляции
Разберемся с тем, как в подвале гаража сделать вентиляцию принудительного типа. Монтаж такой системы подразумевает использование вентилятора, который поможет обеспечить стабильную циркуляцию воздуха независимо от времени года.
Процесс установки в данном случае не отличается сложностью. Как указывает инструкция, сперва располагают трубы так же, как и при естественной вентиляции. После чего в их полости монтируют вентиляторы, которые будут создавать постоянный приток свежего воздуха.
Труба принудительной вентиляции
Другой способ включает в себя подключение в вытяжном канале специального миньона. При его включении происходит нагрев воздуха и его вытягивание наружу. Взамен нагретого потока начинает поступать холодный.
Для циркуляции воздуха в больших помещениях следует прибегать к механизированным моделям с установкой модульной системы. Однако ее подключение следует доверить специалистам. (См. также статью Вентиляция цокольного этажа: как сделать самому)
Способы устройства вентиляции в погребе гаража
Существуют два типа вентиляционных схем:
- Принудительная вентиляция.
- Система с естественным воздухообменом.
Достоинства и минусы естественной схемы вентиляции
Данная система получила широкое распространение благодаря множеству достоинств:
- Легкость и дешевизна обустройства.
- Отсутствие шума.
- Простота эксплуатации.
Естественную вентиляцию легко устроить своими руками, схема воздухообмена включает в себя всего лишь две трубы: для отвода и для притока воздушных масс.
При этом такая система имеет множество недостатков:
- Отсутствует возможность регулировки.
- Воздух нельзя нагревать и охлаждать.
- Работа системы нестабильна во времени.
Преимущества и недостатки принудительной системы
Принцип работы принудительного воздухообмена основан на искусственном нагнетании воздуха. Кроме того, осуществляется фильтрация воздуха и его охлаждение или подогрев.
Главное преимущество такой схемы:
обеспечение необходимого микроклимата помещений при любых внешних условиях.
Но у данной системы также можно выделить некоторые недостатки:
- Сложность устройства.
- Множество элементов, которые в процессе эксплуатации могут повредиться или выйти из строя.
- Дороговизна оборудования.
- Необходимость постоянного энергоснабжения для работы системы.
Правильный воздухообмен
Устройство качественной вытяжки защищает погреб от множества негативных моментов. Если воздухообмен не предусмотреть, то в овощной яме начнет образовываться конденсат, который приведет к крайне нежелательным последствиям. Высокая влажность в овощной яме – источник заражения овощей. Они загнивают, появляется грибок и неприятная спертость воздуха.
Холодный воздух опускается вниз по одной трубе, а нагретый выходит наружу по другой.
В зимнее время тепло, поступающее от земли, становится причиной того, что в подвале становится намного теплее, чем в гараже. Поэтому воздух начинает постепенно подниматься вверх. Влага, источником которой является овощная яма, способствует возникновению коррозии на кузове и деталях автомобиля и других металлических объектах, находящихся в гараже. Для того чтобы избежать этих проблем, вентиляцию подвала гаража нужно сделать правильно и по всем нормам.
Следует отметить, что такой воздухообмен может происходить естественным образом (за счет того, что теплый воздух легче холодного) или при помощи включения дополнительных вентиляторов. Верхушка трубы должна быть выведена над подвалом и гаражом.
Это интересно: Чем обшить фундамент дома снаружи





































