Грунт: группы и виды
Из-за того, что земляные сооружения создают в грунтах, обязательно следует знать основные их характеристики. От них напрямую зависит подходящий тип фундамента. Выбор осуществляют с учетом достижения максимально возможного уровня надежности и стойкости возводимого основания.
Основные свойства грунта определяются следующими факторами:
- формой, размером, прочностью, расположением частиц, входящих в его состав;
- степенью взаимосвязи между ними;
- способностью составляющих веществ к растворимости, поглощению влаги.
Грунт характеризуют с помощью таких коэффициентов:
- сжимаемости;
- трения;
- пластичности;
- разрыхления.
Классификация предусматривает деление грунтов по различным критериям. Существуют следующие их виды:
- песчаные;
- пылеватые;
- глинистые;
- скалистые;
- обломочные.
Грунт разных видов
В зависимости от содержания воды выделяют грунт:
- сухой (присутствует до 5% влаги);
- влажный (5-30%);
- мокрый (содержит больше 30 % воды).
Деление по группам представлено в таблице далее.
| Категория | Входящие разновидности грунта |
|---|---|
| 1 | супесь, песок, суглинок лёгкий (влажный), торф, грунт растительного слоя |
| 2 | легкая влажная глина, мелкий и средний гравий, суглинок |
| 3 | плотный суглинок, средняя и тяжелая (разрыхленная) глина |
| 4 | мерзлые грунты (глинистые, суглинистые, торфяные, песчаные, супесчаные, растительный слой), тяжелая глина |
| 5 | непрочный известняк и песчаник, сланец крепкий глинистый, вечномерзлые (с примесями щебня, гальки, валунов, гравия до 10%), моренные и речные (с содержанием крупных размеров валунов и гальки до 30%) |
| 6 | крепкие сланцы, глинистый песчаник, известняк мергелистый, непрочные змеевик и доломит, речные и моренные (включения валунов и гальки – до 50%), вечномерзлые (с долей гравия, валунов, гальки, щебня – до 20%) |
| 7 | твердый известняк и песчаник, доломит, змеевик, слюдяные и окварцованные сланцы, мрамор, вечномерзлые (каменные компоненты составляют до 70% объема) |
- плывуны;
- мягкие;
- средние;
- крепкие.
Когда на разработку котлована требуется проект
Часть проекта, согласно которой на объекте производятся земляные работы, называется ПРК (проект разработки котлована). Такой проект составляют, когда глубина разработки превышает 2 м (это может быть дом с подвалом), а также когда для безопасности работ надо укрепить стенки или сделать глубинное водопонижение.
ПРК (или ППР котлована) включает в себя чертежи в плане и разрезе, технологические и другие схемы, в которых содержится информация, вплоть до мест расстановки землеройной техники и самосвалов.
Обязательная часть проекта – экспликация материалов, необходимых для выполнения основных и вспомогательных работ.
План котлована под фундамент
Технологическая схема разработки грунта
Схема организации площадки
Поперечный разрез котлована
Если котлован разрабатывают рядом с существующим сооружением, либо его глубина превышает уровень заложения последнего, в проекте определяют меры против осадки грунта и деформации конструкций.
Это может быть возведение шпунтовых стен, усиление грунтов цементацией либо силикатизацией, устройство нового, более глубокого фундамента под старым.
Выбор защиты зависит от глубины котлована и гидрогеологических условий.
Защита фундаментов существующих зданий
Как форма стенок котлована зависит от его глубины
Свойства грунтов и наличие в них подземных вод определяют структуру котлована, который может иметь вертикальные стенки или пологие.
Вертикальные без креплений можно делать в плотных сухих грунтах, и только, когда котлован не остаётся открытым на продолжительное время.
Стенки котлована ступенчатой формы
Если есть вертикальные откосы (если рядом нет сооружений), глубина не может превышать:
- в твёрдых глинах и суглинках – 3м;
- в полутвёрдых глинах и суглинках – 2м;
- в тугопластичных глинах – 1,5 м;
- в текучих глинах и твёрдых супесях – 1,25 м;
- в песчаных, гравийных и лёссовых грунтах – 1,0 м.
Когда надо рыть на большую глубину, в котловане предусматривают пологие (иногда ступенчатые) стенки, либо выбирают один из вариантов крепления стенок.
Отвесные стенки котлована с анкерным креплением
Когда глубина более 5 метров, крутизна откосов принимается по таблице в СНиП и зависит от типа грунта. Этот параметр – отношение глубины к проекции откоса на горизонталь (на схеме снизу).
Чертеж: крутизна откоса котлована 1:1
Определение размеров котлована
Глубина котлована – важный параметр, который определяется сложением толщин фундамента и подстилающих слоёв. Это: песчано-щебневые подушки, бетонные подготовки и пластовый дренаж.
Разницы нет, под ленточный фундамент роют котлован или под монолитную плиту. Она тоже может значительно заглубляться, когда в здании предусмотрен цокольный этаж или подвал.
Глубина – сумма всех слоёв, начиная от уровня земли
Есть ещё несколько важных размеров. Это периметр дна котлована и его размеры поверху, которые значительно отличаются, если есть пологие стенки.
Основные параметры при расчете размеров котлована
Размеры дна в плане назначают при проектировании, учитывая параметры фундамента и способ возведения, необходимое пространство для опалубки, удобство бетонирования или монтажа сборных элементов.
Сверху размер котлована больше дна на суммарную ширину откосов и элементов крепления стенок.
Часто размеры котлована по дну и поверху различаются незначительно, потому что пологие стенки увеличивают объём земляных работ. На практике чаще делают вертикальные откосы, не смотря на необходимость укрепления.
Этапы утилизации
Весть процесс утилизации грунта можно разделить на 3 основных этапа:
- Перед тем как начать вывоз грунта на утилизацию, нужно снять верхний растительный слой. Он впоследствии понадобится для оформления клумб или ландшафтных участков.
- Затем надо рассчитать количество земли, которое понадобится для засыпки и утрамбовки образовавшихся пустых пространств вокруг строящегося объекта.
- После этого грунт подлежит классификации по классам опасности:
Для него составляется специальный паспорт, а для вывоза требуются разрешения и аккредитации.
Для высокотоксичного грунта существуют специальные Полигоны, где грунт, прежде всего, обязательно обеззараживают и только потом он подлежит захоронению. Опасным считается грунт, содержащий кобальт, медь, хром. Если грунт загрязнен маслами, нефтепродуктами и мазутом, он также подлежит уничтожению.
На заметку, отработанные масла подлежат специальной утилизации, их нельзя просто так выливать в землю, о том как это сделать, читайте здесь. Также рекомендуем почитать про отходы мазута и нефтесодержащие, которые часто попадают в грунт.
К классу малоопасных относят грунт с небольшим содержанием химических соединений.
Встречается и земля без вредных соединений. Ее используют для создания зеленых насаждений и газонов.
Грунты разделяются и по составу. Они могут состоять из песка, глины, торфа, солончаков.
Так как объем подлежащего утилизации грунта имеет внушительные размеры, на помощь приходит спецтехника: экскаватор, бульдозер, трактор, самосвал. Для каждого объекта, техника подбирается индивидуально.
Утилизация – это также и переработка грунта для дальнейшего использования. Для этого проводят:
- первичную сортировку грунта ручную и машинную, при которой из грунта извлекаются отходы, пригодные для дальнейшей переработки (стекло, пластиковая тара, металл, бумага);
- вторичную (рециклинг), при которой переработанные очищенные отходы используются повторно в техпроцессах.
Готовый к вторичному применению грунт можно задействовать:
- при создании карьеров;
- при изготовлении глиняного и силикатного кирпича;
- для поднятия уровня земли при прокладывании новых трасс;
- для создания земляной подушки над опасными грунтами на свалках;
- для создания различных насыпей в ландшафтном дизайне.
Высокотоксичные грунты подлежат обеззараживанию и обязательному захоронению на специально отведенных для этого полигонах.
Какие способы утилизации отходов существуют?
Как правило, верхний слой грунта плодороден. Его не следует выбрасывать, так как он вполне сможет использоваться вторично на сельскохозяйственных предприятиях или здесь же, на месте строительства, для благоустройства территории.
Почвы, которые не являются продуктивными, разрешено использовать, приняв во внимание степень их опасности для окружающей среды и людей. Как говорилось выше, это зависит от уровня зараженности химическими компонентами. Приведем пример: в результате строительства образовался чистый песок, который прошел соответствующую проверку
Почему бы не использовать его вторично на детских площадках?
Приведем пример: в результате строительства образовался чистый песок, который прошел соответствующую проверку. Почему бы не использовать его вторично на детских площадках?
Бывает так, что грунт загрязнен, но не сильно. Аналитика показывает, что степень его зараженности опасными веществами не переходит определенных границ. В этом случае его уже нельзя использовать там, где живут люди. Нельзя эксплуатировать такой грунт вблизи водоемов. Его употребление допустимо в том случае, если смешать эту землю с безукоризненно чистой почвой.
А как поступить с земляными массами, уровень токсичности которых «бьет рекорды»? В этом случае возможен только вывоз на полигоны и захоронение, которому должен предшествовать комплекс специальных обеззараживающих мер.
Допущенный к повторному использованию грунт можно задействовать:
- в строительных или дорожных работах, когда требуется подсыпать землю
- на свалках — там, где необходимо изолировать опасные грунты менее опасными, создав соответствующую «присыпку» — изолирующий слой
- при создании карьеров
- в процессе получения всевозможных смесей песчано-гравийного типа, при извлечении песка и щебня
- в цементном производстве, при получении извести, глинистого и силикатного кирпича
- при возведении разного рода насыпей
- в ходе поднятия уровня земли (ее выравнивания) если это необходимо в строительстве.
От чего зависит уровень опасности грунта?
Если строительство дома или возведение конструкции осуществляется там, где вчера стоял сосновый лес, вполне возможно, что грунт будет очень чистым
Но если на этом месте регулярно сбрасывались отходы предприятий химической промышленности, то обращаться с грунтом необходимо крайне осторожно
В абсолютно любом из возможных случаев нами проводится анализ грунта, на предмет выявления в нём опасных веществ. В зависимости от его результата специалисты нашей лаборатории квалифицируют его, как
- Чистый
- Разрешённый к использованию (не совсем чистый, но уровень загрязнений такой земли — в пределах нормы)
- Умеренно опасный
- Классический опасный
- Критически опасный.
Повторное использование двух первых типов земляных масс разрешено на уровне действующего законодательства. Другие грунты хоронятся исключительно на особых полигонах во избежание экологической катастрофы.
Предшествует захоронению таких грунтов спецобработка. Она делает процесс утилизации более дорогим. Данный процесс производится на специальных заводах у наших партнёров, которые вместе с нами борются не только за хорошую репутацию и высокие показатели бизнеса, но и за сохранение окружающей среды в стране, передаваемой по наследству нашим детям.
1.Определяем объём котлована.
Сначала по Приложению 1 для своего варианта выписываем:
ширина котлована понизу – а = 19 м;
длина котлована понизу – b = 47 м;
глубина котлована – Н = 5 м;
грунт – песок.
Далее определяем:
крутизну откоса (1:т) по таблице 1.1 в соответствии с грунтовыми условиями – (1:т) = 1:1.
Рис.4
Н / А = 1 / т, т – коэффициент заложения.
А = Н ∙ т = 5 ∙ 1= 5 м
Вычерчиваем план котлована, сечения 1 – 1 и 2 – 2 по котловану и проставляем все условные обозначения с числовыми составляющими (рис. 5).
а1 = а + 2Н ∙ m = 19 + 2∙5∙1 = 29 м
b1= b + 2Н ∙ m = 47 + 2∙5∙1 = 57 м
Vк = Н/6 ∙ = 5/6 ∙ =5/6 ∙ = 5/6 ∙ =
5/6 ∙ =5/6 ∙ 7538 = 6282 м3
2.Трудоёмкость выполнения работ.
Согласно полученному объёму грунта – 6282 м3 по табл. 2.1 определяем ёмкость ковша экскаватора – 0,65 м3; подбираем экскаватор по Приложению 2 или по ЕНиР Е2 – ЭО — 4321; ковш, для разработки песка, выбираем со сплошной режущей кромкой; далее составляется калькуляция затрат труда.
Рис. 5
Приложение 1
№ варианта | Размеры котлована, м | Глубина котлована, м Н | Грунт | |
Ширина котлована понизу а | Длина котлована понизу b | |||
1 2 3 4 5 6 7 8 9 10 11 12 13 14 15 16 17 18 19 20 21 22 23 24 25 26 27 28 29 | 28 33 29 37 30 34 32 31 35 38 29 37 30 34 32 28 33 29 37 39 35 38 29 37 29 34 43 29 29 | 58 62 49 71 80 52 69 41 70 63 58 62 49 71 80 52 69 41 70 61 58 62 49 71 80 52 69 41 70 | 4,5 4,5 4,5 4,5 4,5 5,0 5,0 5,0 5,0 5,0 4,3 4,3 4,3 4,3 4,3 4,7 4,7 4,7 4,7 4,7 3,9 3,9 3,9 3,9 3,9 4,1 4,1 4,1 4,1 | песок супесь суглинок лёсс глина песок супесь суглинок лёсс глина песок супесь суглинок лёсс глина песок супесь суглинок лёсс глина песок супесь суглинок лёсс глина песок супесь суглинок лёсс |
Приложение 2 Технические характеристики землеройных машин
Марка (тип трак- тора) | Мощ-ность, кВт | Масса, т | Ём-кость ковша, м3 (размер отвала) | Наибольшие размеры разработки, м | Габариты (длина × ширина× высота), м | Про-из- води-тель-ность, м3/ч | |
ширина | глубина (высота) | ||||||
Экскаваторы | |||||||
ЭО-2621А ЭО-3322 ЭО-3332 Э-5015А ЭО-4321 ЭО-4121 ЭО-5122 ЭО-5123 ЭО-6122 | 44 55 55 59 59 95 125 125 150 | 5,5 14,5 14,5 13,0 19,2 24,5 35,8 37,0 58,0 | 0,25 0,4..0,5 0,4 0,5 0,65 1,0 1,25;1,6 2,0 5,0 | 10 16,4 17,2 14,6 18,0 18,8 18,8 20,4 20,4 | 2.2 5,2 5,1 3,9 5,6 5,0 5,0 5,5 5,3 | 7,5×2,0 ×2,25 9,3×2,5 ×3,1 8,8×2,3 ×3,1 8,1×2,8 ×3,0 9,1×3,0 ×4,5 10,4×3,0 ×3,2 13,0×3,1 ×4,9 13,0×3,1 ×4,9 14,0×3,6 ×5,5 | 20 25 25,5 30 40 50 60 80 100 |
Литература
СНиП 12-04-2002. Безопасность труда в строительстве. Часть 2. Строительное производство. — М., 2002.
СНиП 3.02.01-87. Земляные сооружения, основания и фундаменты. — М., 1988.
ЕНиР сборник 2. Земляные работы, выпуск 1. Механизированные и ручные земляные работы. — М., 1988.
Приложение 3. Калькуляция трудовых затрат
№ п/п | Обоснование ЕНиР | Наименование работ | Ед. изм. | Кол- во | Трудоёмкость | Затраты машинного времени | Расценки в рублях | Зарплата в рублях | Состав звена по ЕНиР | |||||||
Норма на ед. ч-час | На весь объём ч-час | На весь объём ч-дни | Норма на ед. м-час | На весь объём м-час | На весь объём м-см | рабочих | машиниста | рабочих | машиниста | профессия, разряд | количество | |||||
1 | 2 | 3 | 4 | 5 | 6 | 7 | 8 | 9 | 10 | 11 | 12 | 13 | 14 | 15 | 16 | 17 |
1 | Е 2 – 1 — ….. | Разработка грунта ….. группы в котлованах одноковшовыми экскаваторами, оборудованными …………………, с ………………. приводом, с ковшом вместимостью ….. м3 с зубьями (со сплошной режущей кромкой), с погрузкой в транспортное средство | 100 м3 грунта | — | — | — | × | — | × | — | × | × | ||||
итого | × | × |
Соседние файлы в папке Лит-ра к подсчету объемов работ
Закрытый водоотлив
В случае низкой эффективности открытой откачки воды применяется искусственное водопонижение. Процесс выполняется благодаря непрерывной откачки. Процесс планируется до грунтовых работ.
Применяются такие методики:
- электроосмос;
- вакуумный;
- иглофильтровый.
Выбор способа зависит от конкретных условий работы. Учитываются параметры емкости, глубина, параметры оборудования.
Иглофильтровой
В данном случае применяются иглофильтровые установки. Они выполняются из стальных труб с фильтрами, самовсасывающим вихревым насосом, коллектором для сбора воды. Трубы из стали погружаются в обводненный грунт по периметру отверстия. Иглофильтр включает трубу диаметром 40-50 см и фильтрующее звено.

На схеме отображаются следующие элементы:
- «а)» при одноярусном размещении иглофильтров;
- «б)» в случае двухъярусного расположения;
- «в)» для работы в траншее;
- «г)» при использовании фильтрующего звена.
Применяют следующие элементы:
- 1 — насосы;
- 2 — кольцевой коллектор;
- 3 — депрессионную кривую;
- 4 — фильтрующее звено;
- 5 — фильтрационную сетку;
- 6 — внутреннюю трубу;
- 7 — наружную трубу;
- 8 — кольцевой клапан;
- 9 — гнездо клапана кольцевого;
- 10 — ограничитель.
При включении шаровые клапаны поднимают вверх, после чего отверстие закрывается. Одновременно опускается клапан, который направляет воду в пространство между трубами.
Вакуумный насос
Он основан на работе эжекторного оборудования, которое используется для работе на глубине 15-20 метров.

На схеме передается использование следующих элементов:
- «а)» — вакуумной установки;
- «б)» — принципа действия иглофильтра эжекторного;
- 1 — центробежного насоса с низким давлением;
- 2 — циркуляционного резервуара;
- 3 — лотка сборного;
- 4 — напорного насоса;
- 5 — напорного рукава;
- 6 — иглофильтра эжекторного;
- 7 — напорной воды;
- 8 — сопла;
- 9 — всасываемой воды;
- 10 — клапана обратного;
- 11 — фильтровой сетки.
Технология связана с погружением фильтрового звена в гнут. Используется принцип легкого иглофильтра. При этом надфильтровое звено включает наружную и внутреннюю трубу со специальной насадкой.
После погружения почва размывается, под воздействием тяжести опускается труба. Затем до нужного уровня опускается внутренняя труба. Вода создает разрешение, подсасывается из рабочей трубы.
Использование электроосмоса
Он используется в грунтах с коэффициентом фильтрации до 0,05 м/сут. Вместе с иглофильтрами обеспечивается погружение трубы или стержня из стали на такую же глубину. Обеспечивается расстояние между элементами от 50 см до 1 метра. Иглофильтры подключают к катоду, трубы — к аноду.

На схеме передается изображение элементов:
- 1 — катода (иглофильтра);
- 2 — анода (трубы);
- 3 — коллектора;
- 4 — токопровода.
Вода освобождается под действием тока. Затем она поступает к иглофильтрам. В зависимости от показателей мощности конкретной установки фильтрация увеличивается от 5 до 25 раз.
Способы проведения земляных работ, используемые механизмы
В зависимости от грунта, в работах по обустройству траншей и котлованов используется разная техника, применяются различные методы ведения разработки участков под строительство. Они отличаются трудоемкостью и уровнем требуемых материальных затрат. Согласно СНиП 111-4-80 выделяет такие способы:
- гидромеханический;
- механический;
- проведение взрывных работ.
Механический способ разработки котлованов и траншей является основным. Суть его заключается в рытье грунта с применением землеройных (экскаваторов) машин, либо землеройно-транспортных (скреперов, бульдозеров, грейдеров).
Гидромеханический способ базируется на размывании грунтовой массы струей воды от гидромонитора. Затем происходит всасывание полученного раствора земснарядом.
Взрывные работы применяют в основном при проведении загородного строительства. Предварительно в земле бурят отверстия (скважины). Далее в них закладывают взрывчатку и подрывают ее. Образовавшуюся рыхлую массу вывозят с помощью техники.
Механический способ рытья выемок
Механический способ состоит из ряда этапов:
- рыхления грунта;
- разработки горной массы;
- ее транспортировки;
- выравнивания, уплотнения боковых уклонов и дна.
Работы по созданию выемок гидромеханическим способом проходят в следующей последовательности:
- обозначают с помощью ограждений, надписей, предупреждающих знаков зону рабочего участка;
- по нормам устанавливают гидромонитор, управляемый вручную оператором: расстояние от его насадки до стенки котлована должно быть не меньше высоты выемки, а до ближайшей воздушной ЛЭП – не менее двух промежутков, на которые способна подаваться струя воды данной техникой;
- за охранным периметром линий электропередачи размещают пульпопроводы, водоводы;
- ограждают места отвалов намытой земляной массы;
- производят размывание и выемку.
Управлять гидромонитором при грозе запрещается.
Проведение взрывных работ регламентируется соответствующими правилами.
Когда выполняют механическое разрыхление земляной массы ударным методом, тогда рабочие не должны находиться в радиусе 5 м от места проведения рыхления.
Какой слой может быть опасным?
Утилизация грунта означает, что его использовали в каком-то хозяйстве по озеленению, привезли для разбивки клумб или применили для насыпей по укреплению границ водного объекта. Чтобы организация приняла выработку из котлованов для своей хозяйственной деятельности, она проходит классификацию для определения:
- степени зараженности опасными веществами — ртутью, цинком, мышьяком;
- уровня загрязнений примесями, неблагоприятно влияющими на окружающую среду, жизнь граждан – кобальтом, медью, хромом, нефтяными продуктами;
- уверенности в небольшом количестве химических компонентов или чистоте дерна без вредных ингредиентов.
Если на практике провели лабораторную проверку почвенного слоя, чистая или допустимая по нормативам масса пойдет на озеленение. С высокой степенью зараженности перевезут на полигон, утилизация грунта там проходит в виде захоронения.
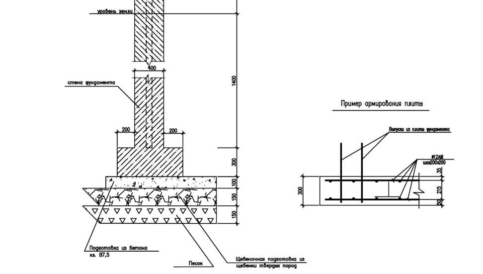
Траншея под ленточный фундамент
Перед тем, как приступить к копанию траншеи под ленточный фундамент, необходимо снять растительный слой почвы по всей площади будущего здания, захватив с учетом отмостки еще 1 метр по периметру. Обычно снимают 30 см. грунта, но если растительности на участке очень мало, можно уменьшить глубину. Растительный слой складывают в бурты там, где планируют сделать газоны или посадить деревья.
Следующий этап работ – копание котлована или траншеи. Если дом будет с подвалом по всей площади или с цокольным этажом, роют один большой котлован. В остальных случаях делается траншея под ленточный фундамент .
Глубина и ширина траншей и котлованов
В случае ленточных фундаментов траншею копают и под наружные, и под капитальные стены. Под капитальные стены траншею делают глубиной 0,5 м, под наружные – больше, чем глубина промерзания почвы в регионе строительства. Если ленточный фундамент будет монолитным, ширина траншеи равняется проектной ширине фундамента. В таком случае стенки траншеи выступают опалубкой .
Котлован под здания с цокольным этажом копают на глубину, указанную в проекте дома, а по периметру углубляют траншеей до глубины промерзания земли. Если по проекту пол цокольного этажа расположен ниже глубины промерзания, можно обойтись без углубляющей траншеи по периметру.
Если кроме дома на участке планируются какие-либо другие постройки, желательно делать фундаменты под все планируемые строения сразу. Таким образом, котлованы и траншеи под фундаменты копают за один прием.
Специалисты советуют все земляные работы на участке выполнять за один раз. Другими словами, если на участке будут монтироваться коммуникации (канализация, водопровод, кабель и др.), то лучше траншеи под них копать вместе с котлованом для дома. Затем укладывают коммуникации, делают фундамент и к земляным работам больше не возвращаются.
Обустройство стенок и дна траншеи
В целях безопасности запрещается делать стены котлованов и траншей вертикальными. Стенки должны быть с откосами. На сыпучих и влажных грунтах откосы закладывают 1:0,5 или больше. В противном случае на период возведения фундамента нужно будет укреплять стенки деревянными щитами. Если грунт сухой, а фундамент будет строиться сразу после выкапывания котлована, откос может составлять 1:0,25.
После выкапывания котлованов нужно вручную подвести дно под требуемую отметку. Если при рытье траншеи или котлована были допущены переборы и появилась яма, эти места засыпают щебнем, который утрамбовывают в почву. Нельзя подсыпать ямы грунтом, чтобы довести дно до нужной отметки.
Обратная засыпка траншей и котлованов
Когда построен фундамент и проложены все коммуникации, делают обратную засыпку траншей и котлованов. Для этой цели используют грунт с выемки, утрамбовывая его послойно. В условиях сухих грунтов каждый слой перед утрамбовкой смачивают водой. Если на участке пришлось отводить грунтовые воды посредством дренажной системы, она должна функционировать вплоть до завершения обратной засыпки.
Засыпать траншеи с проложенными коммуникациями следует сначала песком, так, чтобы он поднимался от кабеля или трубы как минимум на 25 см. Поверх песка по всей длине укладывают тонкий слой кирпичного боя. И только после этого траншею засыпают грунтом
Данное правило очень важное, и нарушать его крайне не рекомендуется. Кирпичный бой является, своего рода, маркером. Если впоследствии возникнет необходимость что-нибудь копать на участке, он поможет не допустить повреждения проложенных коммуникаций
Если впоследствии возникнет необходимость что-нибудь копать на участке, он поможет не допустить повреждения проложенных коммуникаций.
Статья написана специально для: BILTA.net
Какой документ служит расходной единицей?
Если договор заключен с такой компанией, которая имеет собственные площадки утилизации, проблема упрощается. Организация берет на себя обязанности погрузки и конечной доставки грунта. При отсутствии свалки, нужно получить лимит на вывоз определенного объема, в подтверждение выдадут талоны. Они позволят захоронить бытовые или промышленные излишки: к ним относится и земля, вырытая из котлованов.
Процедурой по оформлению бумаг занимается фирма, ответственная за вывоз, с которой застройщик подписал соглашение. Она будет работать в соответствии с необходимыми требованиями экологии, передаст отчеты в контролирующие органы, выберет полигон и метод использования песка или глины.
Технология переработки растительного грунта
При проведении ландшафтных работ растительный грунт используют практически везде: для озеленения, разбивки газонов, при посадке деревьев и кустарников.
Растительный грунт представляет собой верхний слой почвы, который обладает достаточной плодородностью. Растительный грунт бывает двух разновидностей. Естественный растительный грунт снимают непосредственно с почвы в экологически чистом районе и сразу доставляют заказчику. Приготавливаемый растительный грунт – это слой почвы с внесенными питательными элементами. Это может быть чернозем, богатый гумусом, торф, минеральные удобрения.
Выбор питательных элементов, добавляемых к растительному грунту, зависит от предназначения этого грунта в последующем. После внесения необходимых питательных веществ растительный грунт становится более плодородным, что благотворно влияет на рост газонной травы, деревьев или кустарников.
В строительстве используют переработку грунта для достижения различных целей. Грунт перерабатывают при подготовке к закладке фундамента, для изменения рельефа местности перед началом строительства, для обустройства территории под постройку дорог и т.д. В результате получается необходимое сооружение, допустим, насыпь, выемка, подземные сооружения и т.д.
Траншея представляет собой вырытую выемку, имеющую ширину не более трех метров и длину более трех метров. Если ширина выемки не превышает десятикратного размера своей длины, то она называется котлованом. Выемки имеют дно, могут иметь наклонные откосы, у них бывают боковые стенки, в отдельных случаях выемки могут иметь вертикальную стенку.
Подземными выработками называют закрытые с поверхности выемки. Они могут быть использованы в качестве транспортных туннелей или других целей. После постройки подземных сооружений или определенных частей здания, грунт упаковывают в выемки между откосами котлованами и боковыми стенками. Этот процесс называется засыпкой. Процесс засыпки также может называться «упаковыванием в пазухи».
К главным функциям переработки грунта можно отнести его разработку, перемещение и последующую укладку. Это позволяет создавать сооружения необходимых размеров. Для успешного выполнения таких функций иногда требуются подготовительные и вспомогательные работы. Этот тип работ называют земляными работами. Земляные работы относятся к самым трудоемким и сложным строительным работам. Они требуют большого количества рабочих.
Переработка растительного грунта может осуществляться различными способами, которые можно разделить на четыре категории:
- гидравлические;
- ручные;
- взрывные;
- механические.
В наше время наиболее часто применяется механический способ переработки грунта, это позволяет выполнять необходимые работы за минимальный промежуток времени.
Ручной способ переработки грунта отличается низкой эффективностью и большими затратами. Механический способ куда эффективней. Бурение, взрывание и утрамбовывание редко применяются в современном строительстве, так же, как и ручной способ переработки грунта. Также можно отметить высокое значение переработки грунта. Без него не возможно строение никаких зданий, шахт, стадионов и т.д. Другими словами, переработка грунта лежит в основе любого строительства.
Для излишков неиспользованного материала может потребоваться вывоз грунта, который осуществляется специализированной техникой.
Устройство распорной системы котлована
Не смотря на все инженерно-технические ухищрения, иногда, особенно для глубоких котлованов в тяжёлых грунтовых условиях и плотной городской застройке, шпунтовое ограждение может оказаться недостаточно прочным для удержания давления грунтовой массы.
На последнем этапе возведения котлована на помощь приходят 2 технологии крепления ограждений.
Вид на распорную систему котлована вблизи автомагистрали и соседних строений
Первая из них — распорная система. По периметру устанавливается обвязочный пояс из металлопроката, равномерно распределяющий нагрузку по всему поясу. В пояс упираются распорки — как между противоположными стенками, так и между дном. Все конструкции выполняются в соответствии с точным механическим расчётом и изложены в ППР (плане производства работ).
Но распорная система крадёт внутреннее пространство выемки, которая и устраивалась специально для свободного манёвра в процессе строительных работ. Особо нагруженные конструкции распорных систем создают невероятно стеснённые условия для строителей. Это сокращает производительность и удлиняет сроки сдачи объекта.
Разновидности котлованов

Прежде чем заняться устройством котлована, необходимо рассмотреть его основные разновидности. На сегодняшний день известны критерии, по которым котлованы классифицируются на отдельные подвиды. С ними следует ознакомиться:
- необходимость наличия угловых креплений;
- количество откосов или их отсутствие;
- наличие наклонных стенок траншеи или котлована.
Последний фактор определяется основанием, которое может быть плитным или ленточным. Если на участке планируется возводить ленточный фундамент, то котлован будет иметь вид траншеи, располагающейся по периметру и в тех местах, где будут несущие стены.
Если вы планируете возведение плитного фундамента с подвалом, то котлован должен располагаться по периметру дома и в том месте, где будет находиться цокольный этаж. Перед началом работы необходимо осуществить земляные работы, они предусматривают:
- определение типа почвы;
- проведение анализа здания;
- выполнение расчета глубины котлована;
- проведение анализа климатического состояния региона.
Тип почвы определяется специальной экспертизой. Этот этап является обязательным, ведь с его помощью можно определить глубину основания, что обеспечит надежность и прочность здания в процессе эксплуатации. Можно осуществить ещё и анализ здания, которое будет выстраиваться на участке. Необходимо знать вес постройки, а также нагрузку на фундамент
Важно предусмотреть наличие самых мелких деталей, вплоть до материалов отделки полов, стен и кровли
Способы утилизации
Для определения способа утилизации нужно узнать, какой слой почвы используется.
Если был снят только верхний слой (гумус), то его можно применить в дальнейшем при выращивании растительных культур в промышленных масштабах.
Советуем почитать: Международные и российские природоохранные организации
Раскопанный грунт на больших глубинах оценивается на предмет содержания опасных веществ. Наиболее универсальный из них – песок без примесей, подходит как для заготовки стекла, так и для обустройства песочниц на детских площадках.
Загрязнённый в пределах законодательной нормы грунт обязан быть перемешан с чистой почвой. Запрещён к использованию в речной и антропогенных зонах.
«Токсичная» земля должна быть обеззаражена и захоронена в специализированных полигонах.
Перспективное применение отходов:
- стройка или ремонт дорог, где земля используется для подсыпки в нужных объёмах;
- свалка – изоляция или засыпка карьерных ям;
- создание строительных смесей (от щебня до глинистого кирпича).
Для вывоза грунта используются специальный транспорт, такой как бульдозер, экскаватор или самосвал.
Разработка грунта землеройными машинами
К данному роду машинам можно смело отнести экскаваторы следующего типа:
- одноковшовые;
- многоковшовые;
- фрезерные.
Довольно интересный момент, каждая из разновидностей также подразделяется на подвиды, к примеру, одноковшовые экскаваторы могут быть: драглайновыми, грейферами. Многоковшовые различаются на цепные и роторные.
Также нужно понимать различие в зависимости от устройства ходовой части. Различаются на:
- пневмоколесные;
- гусеничные;
- автомобильные;
- «шагающие».
Плюс определенная доля отличий наблюдается в системе управления, а именно:
- электрические;
- пневматические;
- гидравлические.
Разработка грунтов в промышленных масштабах и объёмах выполняется экскаваторами с объёмом ковша от 0.15 до 4 кубических метров. В мелких работах соответственно задействуют меньшую технику.





































